El Ayuntamiento de Alicante concede la licencia de obra mayor para la construcción del colegio público La Almadraba

Centro de educación infantil y primaria (CEIP) La Almadraba de Alicante.
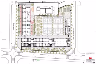
Centro de educación infantil y primaria (CEIP) La Almadraba de Alicante. - AYUNTAMIENTO ALICANTE
Europa Press C. Valenciana
Publicado: miércoles, 17 enero 2024 12:55

   ALICANTE, 17 Ene. (EUROPA PRESS) -

   La Concejalía de Urbanismo del Ayuntamiento de Alicante ha aprobado este miércoles la concesión de la licencia ambiental de obra mayor para la construcción del nuevo centro de educación infantil y primaria (CEIP) La Almadraba, lo que permite a la Conselleria de Educación iniciar las obras del centro educativo.

   El CEIP La Almadraba se levantará en una parcela de 12.268 metros cuadrados situada en la zona de La Condomina, entre las calles Britania, Enric Valor y Manuel Azaña, según ha indicado el consistorio alicantino en un comunicado.

   La superficie construida será de 7.016 metros cuadrados y estará dotado de tres aulas de infantil en el ciclo de 0 a 2 años, otras nueve para educación infantil en el ciclo de 3 a 5 años y 18 aulas más para educación primaria. En total, tendrá capacidad para acoger a 735 alumnos y dispondrá de un comedor con 600 plazas.

   Este centro educativo contará con tres edificios conectados entre sí a través de techados en su primera planta, dedicados a educación infantil, primaria y gimnasio. También dispondrá de zonas de juego y de recreo diferenciadas y pistas deportivas exteriores.

   El edificio que da a la calle Britania, de una sola planta, acogerá las aulas, baños, despachos, almacenes y espacios comunes de educación infantil. El segundo edificio, con fachada a la calle Enric Valor, albergará las aulas de educación primaria, así como los despachos, zonas comunes y el comedor del centro. Este bloque tendrá dos plantas.

   Por último, en el edificio más próximo a la calle Manuel Azaña se ubicará el gimnasio, con sus baños y vestuarios, sobre el que también está previsto ubicar aulas de primaria. En el espacio central situado entre los tres edificios se habilitarán zonas de juego para las distintas etapas escolares y se situarán pistas deportivas exteriores.

   El Ayuntamiento ha resaltado que la concesión de la licencia ambiental permite iniciar el proceso de licitación y adjudicación del contrato de construcción del centro educativo, que parte con un presupuesto de ejecución material de 7.854.826 euros. Una vez adjudicado el contrato podrán empezar las obras, que parten con un plazo estimado de ejecución de 20 meses.

   La concejala de Educación, Mari Carmen de España, ha apuntado que la culminación de los trámites urbanísticos para la construcción del CEIP La Almadraba es "una gran noticia, ya que este nuevo colegio supondrá un gran alivio desde el punto educativo para la zona de playas". "Esta obra es una prioridad y una necesidad urgente, para que los alumnos y la comunidad educativa de La Almadraba dispongan de las unas instalaciones adecuadas", ha añadido.

"DESBLOQUEO" DEL PROYECTO

   Asimismo, la edil ha agradecido el "desbloqueo de este proyecto por parte del nuevo gobierno de la Generalitat", que ha indicado que presentó la solicitud de licencia en julio. "La agilización de los trámites urbanísticos por parte del Ayuntamiento y del Consell, que ha posibilitado la concesión de la licencia ambiental seis meses después de la solicitud por parte de la Conselleria de Educación, es fruto del trabajo estrecho de colaboración y coordinación con la Generalitat, que ha sido posible gracias al cambio de gobierno", ha afirmado.

   "Cuando hay voluntad de colaboración, los proyectos salen adelante. El Gobierno del Botnic no construyó ni un solo centro educativo en Alicante en ocho años. Seguiremos trabajando de la mano para sacar adelante el resto de proyectos educativos pendientes", ha sostenido.

   Por su parte, la concejala de Urbanismo, Rocío Gómez, ha defendido que los actuales equipos de gobierno del Ayuntamiento de Alicante y de la Generalitat han hecho "lo posible por acelerar al máximo la tramitación de este expediente, conscientes de que el colegio La Almadraba es un proyecto prioritario para la ciudad".

   El Ayuntamiento ha destacado que, a la construcción de este colegio, se sumarán en los próximos años las del Centro de Educación Especial El Somni, cuyo proyecto constructivo y de ejecución se aprobó en octubre de 2023, y el nuevo centro de La Cañada del Fenollar, que está en trámite de revisión de precios actualizada. También se han iniciado los trámites para la adjudicación de las reformas integrales de los colegios Juan Bautista Llorca y La Florida, así como del Centro de Educación Especial Santo Ángel de la Guarda.

Últimas noticias sobre estos temas

Contenido patrocinado

Hemeroteca en Valencià d'Europa Press