CANTABRIA.-Torrelavega.- El PP reclama a Marcano que reactive la obra del Centro de Emprendedores

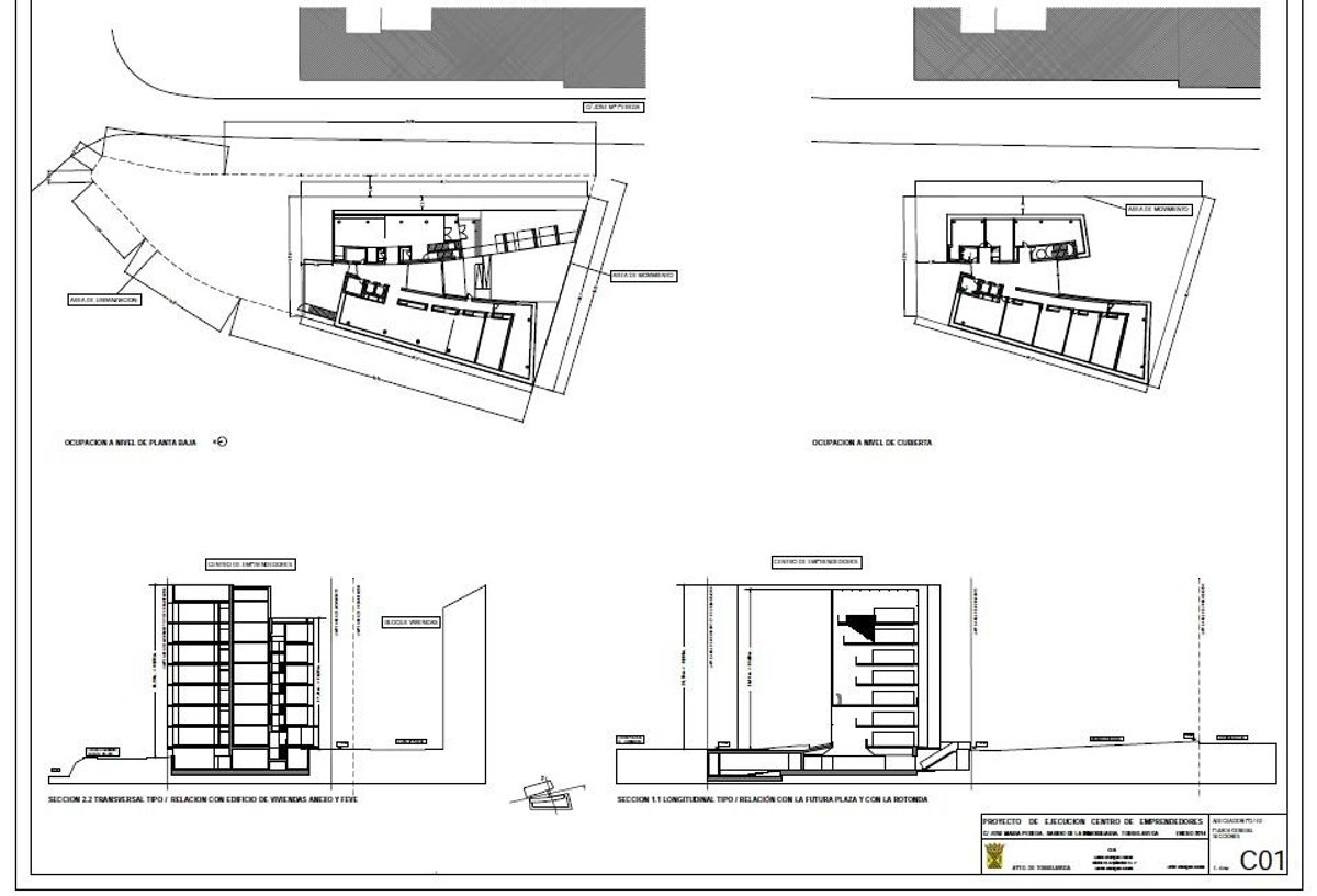
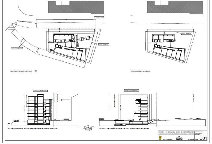
Planos del proyecto del Centro de Emprendedores de Torrelavega
ACPT
Europa Press Cantabria
Actualizado: lunes, 9 febrero 2015 14:22

TORRELAVEGA 9 Feb. (EUROPA PRESS) -

El PP ha reclamado al secretario general del PRC en Torrelavega, Francisco Javier López Marcano, que reactive la construcción del Centro de Emprendedores, una obra de 2,6 millones de euros parada desde hace tres meses.

En un comunicado, el Grupo Popular ha instado a López Marcano a "poner orden en las filas regionalistas", porque el concejal de Obras, Pedro García Carmona, el de Hacienda, Pedro Pérez Noriega, y el concejal responsable de gestionar el Centro de Emprendedores, Javier López Estrada, todos ellos regionalistas, "no son capaces de desbloquear" los problemas que surgieron en diciembre del año pasado y se corre el riesgo de perder más de un millón de euros de subvención de la Unión Europea "si la obra no arranca inmediatamente", ha advertido.

Para los 'populares', López Marcano" tiene que llamar a capítulo" a sus tres concejales "de forma urgente" porque si la construcción del Centro de Emprendedores no termina antes del 31 de diciembre de 2015 se pueden perder 1,3 millones de euros, la mitad del coste de la obra, que fue adjudicada en julio de 2014 a la UTE Vias-Codelse.

La obra fue paralizada temporalmente en noviembre de 2014 al haberse demolido una caseta con cubierta de fibrocemento (uralita) sin seguir los procedimientos legalmente establecidos, según se denunció. Sin embargo, una vez solucionados los problemas, la obra sigue parada y ya acumula tres meses de retraso "en medio del silencio sepulcral de los dirigentes municipales", ha denunciado el PP.

"López Marcano tiene que tomar cartas en este asunto porque sus concejales regionalistas están dormidos y siguen sin ofrecer explicaciones de la paralización de la obra mientras el tiempo corre en contra de Torrelavega, que ve cómo se puede escapar este importante proyecto de recuperación económica y de creación de empleo", ha insistido.

Contenido patrocinado