Ayuntamiento de Valladolid aprueba licencia para una escuela de educación especial de una fundación vinculada a Cáritas

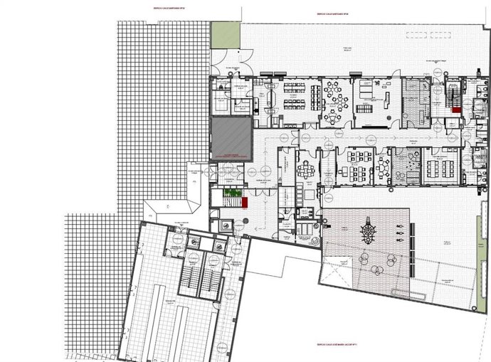
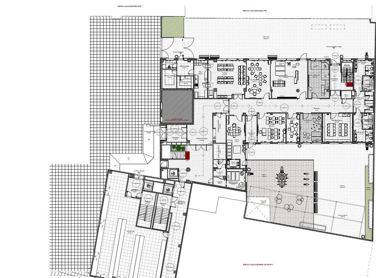
Plano de la planta de la futura escuela de educación especial en la calle José María Lacort.
Plano de la planta de la futura escuela de educación especial en la calle José María Lacort. - AYUNTAMIENTO DE VALLADOLID
Europa Press Castilla y León
Publicado: lunes, 6 noviembre 2023 16:33

   VALLADOLID, 6 Nov. (EUROPA PRESS) -

   La Junta de Gobierno Local del Ayuntamiento de Valladolid celebrada este lunes ha autorizado la concesión de la pertinente licencia de obras solicitada por la Fundación Emilio Álvarez Gallego, vinculada a Cáritas, para la construcción de un colegio de Educación Especial en una parcela del entorno urbanístico precisamente conocido como 'Cáritas', en la esquina de José María Lacort y Simón Aranda.

   El edificio proyectado se ubicará junto al edificio de Cáritas Diocesana en una parcela que cuenta con edificaciones preexistentes que condicionan su implantación. Así, el Ayuntamiento de Valladolid apunta existe un garaje que se desarrolla en cuatro plantas bajo rasante, en el que no se interviene.

   La edificación propuesta se adaptará a esta estructura preexistente, de manera que se ha diseñado un edificio que engloba los espacios educativos, terapéuticos y administrativos mediante un organigrama que responda a todas y cada una de las necesidades.

   El centro docente de Educación Especial estará destinado a los niveles de Segundo Ciclo de Educación Infantil, Educación Primaria y Educación Secundaria.

   Las dependencias se agruparán por usos, siguiendo los criterios normativos y de la experiencia en este tipo de centros, pero también teniendo en cuenta los requisitos expresados por el promotor.

   El centro educativo contará con un aula de Segundo Ciclo de Educación Infantil, para un máximo de 25 alumnos, y cinco aulas de Educación Básica Obligatoria, para un máximo de 25 alumnos por cada unidad escolar.

   Contará también con espacios educativos y terapéuticos como biblioteca, aula de psicomotricidad-gimnasio, aula de fisioterapia, aula multisensorial, sala de relajación, salas polivalentes, sala de ordenadores, aulas de audición y lenguaje y aulas de planes de trabajo individualizados.

   El edificio estará formado por un único volumen provisto de varios accesos, interconectados por un vestíbulo central, con dos plantas en forma de 'L' y, a su vez, conectadas mediante dos núcleos verticales de comunicación.

   Se ha diseñado mediante un sistema de zonas yuxtapuestas, con acceso controlado, de modo que al visitante se le permitirá el acceso únicamente hasta el vestíbulo principal donde será recibido, atendido y en su caso dirigido hacia los espacios de carácter más público, como la zona de administración o la Sala de la AMPA, mientras que el alumno una vez que acceda a la zona docente tendrá acceso a los diferentes espacios relacionados con ésta, así como con el comedor, los patios y demás dependencias, pero no así a la zona pública o al exterior del Centro.

   Dentro de la parcela una serie de porches, zonas de pavimento flexible y áreas ajardinadas establecerán la comunicación adecuada entre los diferentes ámbitos, creando al mismo tiempo un filtro visual que permitirá el control, la coexistencia y el desarrollo de las diferentes actividades sin interacciones negativas.

   El centro cuenta con cuatro patios de recreo diferenciados, con una superficie total de 900 metros cuadrados (m2) y dispondrá de una zona con posibilidad de ser cubierta por toldos de tela retráctiles, y de una zona para huerto.

   La distribución del programa del edificio parte de la correcta interrelación de las diferentes zonas y de la adecuada orientación de aulas, talleres y salas.

   Esta parcela fue una de las que sufrió alteraciones en la manipulación del Plan General de Ordenación Urbana de 2003, que acabó con la condena en 2019 del exconcejal de Urbanismo José Antonio García de Coca, recientemente fallecido, y varios cargos de dicho área que ejercieron durante la etapa del exalcalde 'popular', Francisco Javier León de la Riva.

   La modificación irregular en su día consistió en que se varió un plano para que en una parcela que debía figurar como suelo urbano no consolidado se considerase como consolidado, lo que no obligaba a los propietarios a ceder espacios libres para dotaciones públicas.

   Finalmente, con la revisión del PGOU de 2020, aprobada durante la etapa de Manuel Saravia (VTLP) como concejal de Urbanismo, se estableció un nuevo reparto de los espacios de acuerdo con la Fundación Emilio Álvarez Gallego.

   Según se apuntó en ese momento, el Ayuntamiento obtenía una parte de la parcela que se podría dedicar a una dotación municipal.

Últimas noticias sobre estos temas

Contenido patrocinado