Barcelona renovará el complejo deportivo municipal Francesc Abad del Bess i el Maresme

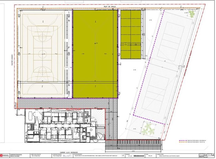
Vista en planta de las nuevas instalaciones del deportivo Francesc Abad
Vista en planta de las nuevas instalaciones del deportivo Francesc Abad - AYUNTAMIENTO DE BARCELONA
Europa Press Catalunya
Publicado: domingo, 3 julio 2022 13:07

BARCELONA 3 Jul. (EUROPA PRESS) -

El Ayuntamiento de Barcelona ha aprobado el proyecto para renovar las instalaciones del deportivo municipal Francesc Abad en el barrio del Bess i el Maresme de Barcelona.

Las obras empezarán este verano, tendrán una duración de 6 meses y contarán con una inversión de 1 millón de euros, ha informado el Ayuntamiento en un comunicado este domingo.

Se trata de un proyecto de construcción de una pista polivalente tipo Pol-2 que incorpora campos de diversos deportes como el baloncesto, el voleibol o el críquet en un solar de 4.688 metros cuadrados.

La actuación también incorporará vestuarios y locales de apoyo en los bajos del edificio de viviendas de titularidad municipal que el Ayuntamiento está edificando junto a las pistas deportivas.

El distrito de Sant Martí y el Pla de Barris han desarrollado un programa deportivo abierto a la ciudadanía del barrio del Bess i el Maresme, principalmente a los niños y niñas y a los colectivos en riesgo de exclusión social con el objetivo de fomentar los hábitos saludables que proporciona el ejercicio físico.

Contenido patrocinado