El barrio de Trinitat Vella de Barcelona contará con un nuevo casal para ancianos

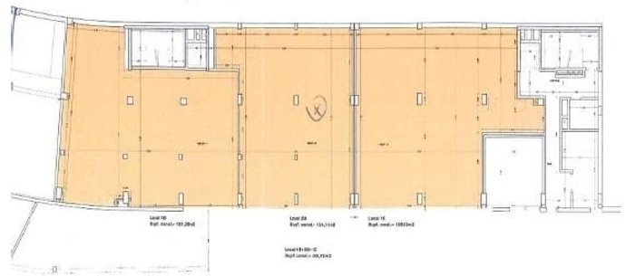
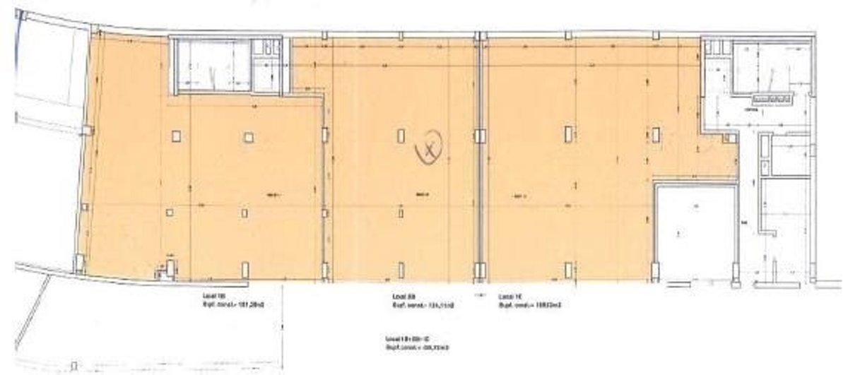
Los tres locales que conformarán el nuevo casal para ancianos en Trinitat Vella
EUROPA PRESS
Europa Press Catalunya
Actualizado: martes, 26 diciembre 2017 11:31

BARCELONA 26 Dic. (EUROPA PRESS) -

El barrio de Trinitat Vella, en el distrito de Sant Andreu de Barcelona, contará con un nuevo casal para ancianos, situado en el número 85-97 de la carretera de Ribes.

El Ayuntamiento de Barcelona ha formalizado esta semana la compra de tres locales por un valor de 516.000 euros que conformarán el futuro equipamiento en una zona céntrica tal y como pedía el vecindario, ha informado el consistorio este martes en un comunicado.

El espacio, que forma parte del Plan de Barrios de Trinitat Vella, se destinará al fomento de hábitos saludables y de bienestar social, al ocio, a la formación permanente y, especialmente, a facilitar las condiciones óptimas para la vida comunitaria y la relación entre las personas mayores.

Artículos Relacionados

Contenido patrocinado