Junta adjudica la obra del nuevo edificio del IES 'Juan Bosco' de Alcázar, cuyo plazo de ejecución es de ocho meses

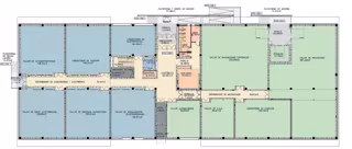
Plano del nuevo edificio de talleres de formación profesional en el IES 'Juan Bosco' de Alcázar de San Juan.
Plano del nuevo edificio de talleres de formación profesional en el IES 'Juan Bosco' de Alcázar de San Juan. - JCCM
Europa Press Castilla-La Mancha
Publicado: lunes, 18 agosto 2025 11:32

CIUDAD REAL 18 Ago. (EUROPA PRESS) -

El Gobierno de Castilla-La Mancha ha adjudicado a la empresa Gestión y Ejecución de Obra Civil, S.A. la obra de construcción del edificio de talleres de ciclos formativos profesionales en el instituto de educación secundaria (IES) 'Juan Bosco' de Alcázar de San Juan por un importe de 3.692.157 euros. El plazo de ejecución es de ocho meses.

El delegado de Educación, Cultura y Deportes en la provincia de Ciudad Real, José Caro, ha manifestado que se trata de un trámite "importante y muy esperado por la comunidad educativa", destacando que "es un punto de inflexión en la reforma integral del edificio, y que constituye la mayor inversión de las previstas en los centros educativos de la provincia de Ciudad Real".

Según informa el Ejecutivo regional, el objeto del proyecto es realizar un nuevo edificio funcional y de altas prestaciones que permitirá alojar los talleres de las familias profesionales de electricidad-electrónica y mecanizado con unas prestaciones bien definidas; accesos cercanos al edificio de aulas y acceso rodado de material al muelle; construcción prefabricada de hormigón en estructura y cerramientos; reducido plazo de ejecución, zonificación de los espacios de las dos familias profesionales implantadas en él; terraza central para ubicación de campo fotovoltaico e instalaciones; espacio interior diáfano por utilización de vigas canalón de gran luz; forjado sanitario elevado para prevenir efectos de posibles inundaciones; y muelle con acceso directo a talleres de mecanizado y almacén de residuos.

En este sentido, la familia profesional de Fabricación Mecánica albergará el ciclo formativo de grado medio 'Mecanizado' y el ciclo de grado superior 'Programación de la producción en fabricación mecánica', mientras que la familia profesional de Electricidad y Electrónica alojará los ciclos formativos de grado medio 'Instalaciones de Telecomunicaciones' e 'Instalaciones Eléctricas y Automáticas' y otros dos ciclos formativos de grado superior, como son 'Mantenimiento electrónico' y 'Sistemas electrotécnicos y automatizados'.

Se trata, por tanto, de un edificio exclusivo para talleres, desarrollado íntegramente en planta baja con una superficie construida de 1.828 metros cuadrados que se levantará en la parte posterior del solar que ocupa el centro educativo, actualmente dedicada a patio de juegos, con un plazo de ejecución de ocho meses y una financiación en dos anualidades: 731.047 euros en el presente año y 2.961.110 euros en 2026.

José Caro ha recordado que la reforma integral de este centro educativo contempla una intervención en tres fases: una primera que es la adjudicación y que consiste en la sustitución de las naves-taller de formación profesional para garantizar unas instalaciones y condiciones adecuadas para las enseñanzas regladas que se imparten, la siguiente será la reforma integral del edificio principal, con ampliación de un núcleo de comunicación vertical y espacios en el ala oeste, y la tercera y última abordará la ampliación de espacios junto a la construcción de un pabellón deportivo y la sustitución del edificio C.

El delegado provincial de Educación, Cultura y Deportes ha terminado trasladado a las familias y al equipo de profesionales del centro, con su dirección a la cabeza, el agradecimiento por la "paciencia" y la "comprensión" con este proyecto que ha experimentado diferentes incidencias a lo largo del tiempo, entre ellas, la resolución del contrato con la anterior empresa, una circunstancia que obligó a reiniciar el procedimiento y, consecuentemente, el retraso de su ejecución.

Últimas noticias sobre estos temas

Contenido patrocinado