Adjudicada la redacción del proyecto de la segunda fase de rehabilitación del antiguo Archivo de Navarra

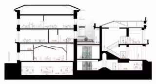
Plano de una de las secciones presentado por el equipo ganador.
EP/GOBIERNO DE NAVARRA
Europa Press Navarra
Actualizado: martes, 16 mayo 2017 13:15

PAMPLONA 16 May. (EUROPA PRESS) -

El Departamento de Presidencia, Función Pública, Interior y Justicia del Gobierno de Navarra ha adjudicado la redacción del proyecto de ejecución de las obras de la segunda fase de rehabilitación del antiguo Archivo General de Navarra al equipo formado por María del Olmo Íñigo, Ramón Preciado Jiménez y Miriam Larumbe Vinuesa, por importe de 84.700 euros.

Dispondrán de ocho semanas para realizar este trabajo. Posteriormente, el Gobierno de Navarra solicitará al Ayuntamiento de Pamplona la preceptiva licencia municipal y comenzará el procedimiento de licitación de la obra.

Las obras consistirán en la rehabilitación interior del edificio y de los jardines situados en su acceso principal. El Gobierno se plantea emplear este inmueble, ubicado en el recinto del Palacio de Navarra, para usos institucionales y oficinas. Entre los primeros se encuentran la habilitación de un nuevo salón, más funcional que el actual, para las sesiones del Gobierno de Navarra, el despacho de consejeros o consejeras, y una sala multiusos con capacidad para albergar a entre 70 y 100 personas.

Respecto al uso administrativo, se dispondrá de un espacio de oficinas para 36 personas, de un almacén de archivo, de otro para objetos voluminosos con acceso desde el jardín, de vestuarios para la Policía Foral y de aseos. Además, ha indicado el Ejecutivo, debido al mal estado que presentan, se pretende también la reurbanización de los jardines de acceso y la sustitución de la actual fuente, respetando la configuración actual de este espacio y contemplando el acceso ocasional de vehículos para recepciones de autoridades.

El departamento de Presidencia, Función Pública, Interior y Justicia continúa así con el plan de intervención, anunciado por la consejera María José Beaumont en noviembre de 2015, para la renovación y utilización integral de la sede principal del Gobierno. En este plan se incluía también la rehabilitación de la cubierta del antiguo Archivo General de Navarra, obra ya concluida y que ha conllevado un coste de 221.847,78 euros, IVA incluido.

OFERTA MÁS VENTAJOSA

En el procedimiento de licitación de la redacción del proyecto de las obras de la segunda fase de rehabilitación del antiguo Archivo han participado los siguientes cuatro licitadores: María del Olmo Íñigo, Ramón Preciado Jiménez y Miriam Larumbe Vinuesa; Herce Lahoz Arquitectura, SL; Miguel Mª Lasa Iturbe; y Santiago Virto Calleja, Jokine Crespo Garbisu, Laura Hernández Sanz e Ignacio Cordero Fort.

El equipo ganador ha presentado la oferta más ventajosa en su conjunto y, según la resolución de adjudicación, su propuesta "cumple" el programa de necesidades establecido con "una correcta distribución" de los espacios interiores, "detalla por escrito y gráficamente" las instalaciones técnicas y las soluciones constructivas, y "plantea una solución para el jardín" que mantiene su configuración actual, en la que se incluye una rampa de acceso al sótano para vehículos situada junto a la fachada del edificio de Obras Públicas, en uno de los lados del jardín.

En el precio de adjudicación de 84.700 euros está incluido el IVA. El 60% corresponde a la redacción del proyecto, con cargo al presupuesto de este año; y el 40% a la dirección facultativa de las obras, con cargo al presupuesto de 2018. El coste del trabajo presenta una rebaja del 30% sobre el precio inicial de adjudicación, previsto en 100.000 euros, IVA excluido.

Contenido patrocinado