Comienzan en Salteras (Sevilla) las obras del aula gimnasio tras su contratación por 686.145 euros

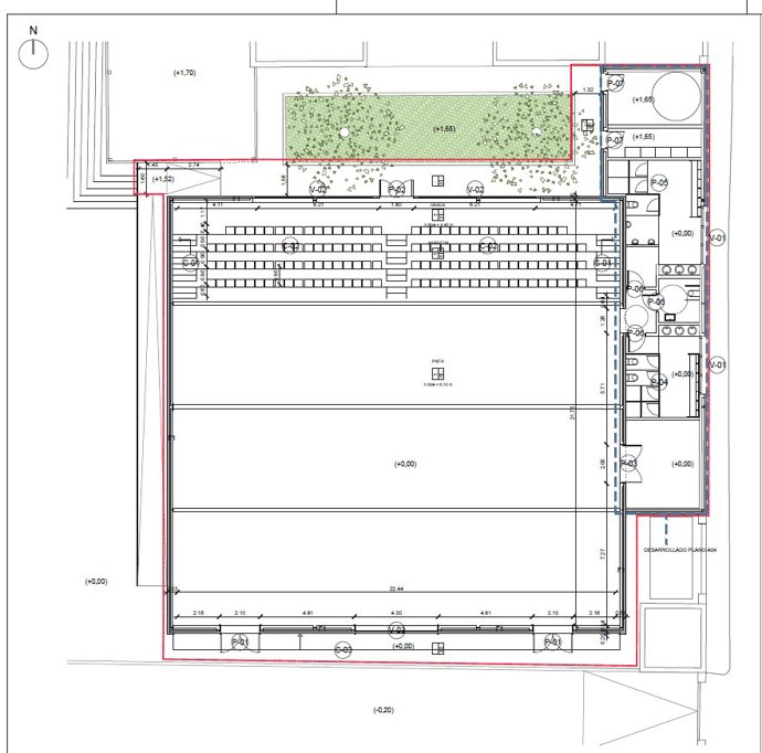
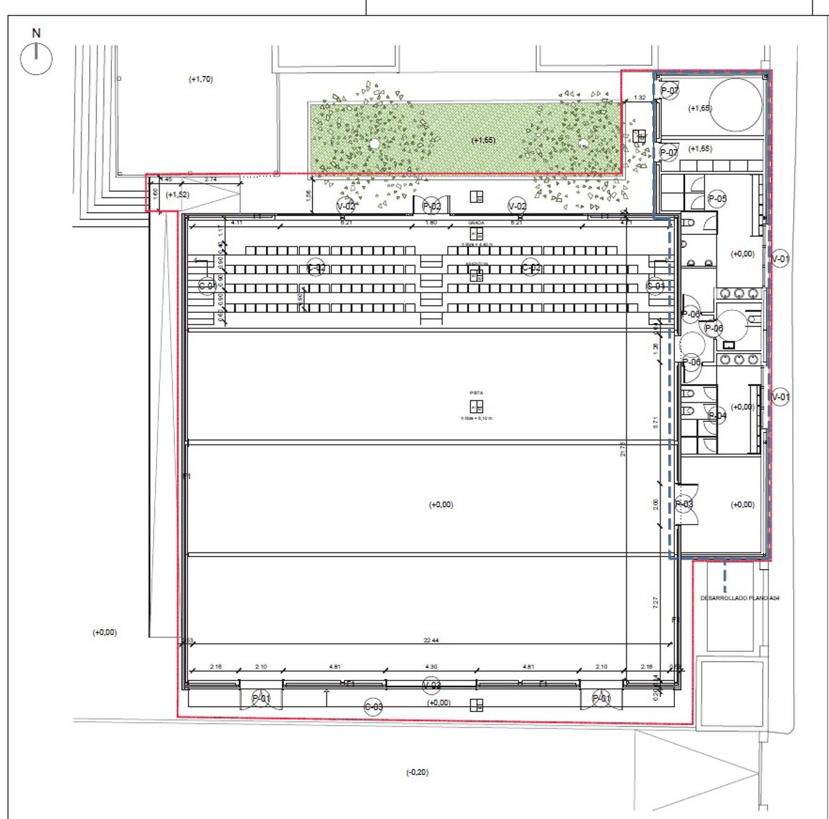
Plano del aula gimnasio
Plano del aula gimnasio - AYUNTAMIENTO DE SALTERAS
Europa Press Andalucía
Publicado: lunes, 30 octubre 2023 16:43

SALTERAS (SEVILLA), 30 (EUROPA PRESS)

El Ayuntamiento de Salteras (Sevilla), gobernado por el socialista Antonio Valverde, acaba de iniciar las obras del aula gimnasio, que se albergará en el Polideportivo Municipal, equipada con vestuarios y aseos y donde se desarrollarán diferentes actividades deportivas, en una superficie construida de 627,24 metros cuadrados, con aforo para 144 personas

El importe invertido en este aula gimnasio ha sido de 686.145 euros, después de que en mayo de 2022, el Ayuntamiento aprobase un presupuesto de 730.000 euros para este proyecto.

En aquellos momentos, el alcalde señalaba que "esta nueva construcción supondrá una mejora importante para los más de 1.200 usuarios de actividades deportivas del Ayuntamiento de Salteras, como las escuelas de Rítmica, Karate y otras, que se verán muy beneficiadas".

Contenido patrocinado

Es Andalucía Sevilla
Cabecera Andalucía
Cabecera Andalucía