Formulada la memoria ambiental del Plan Parcial de Azoños con un máximo de 270 viviendas

El documento destaca que es necesario realizar una revisión sobre el modelo urbano actual de ciudad que se está generando en el municipio

Plan Parcial En Bezana
EUROPA PRESS
Europa Press Cantabria
Actualizado: jueves, 26 mayo 2011 13:21

SANTANDER, 26 May. (EUROPA PRESS) -

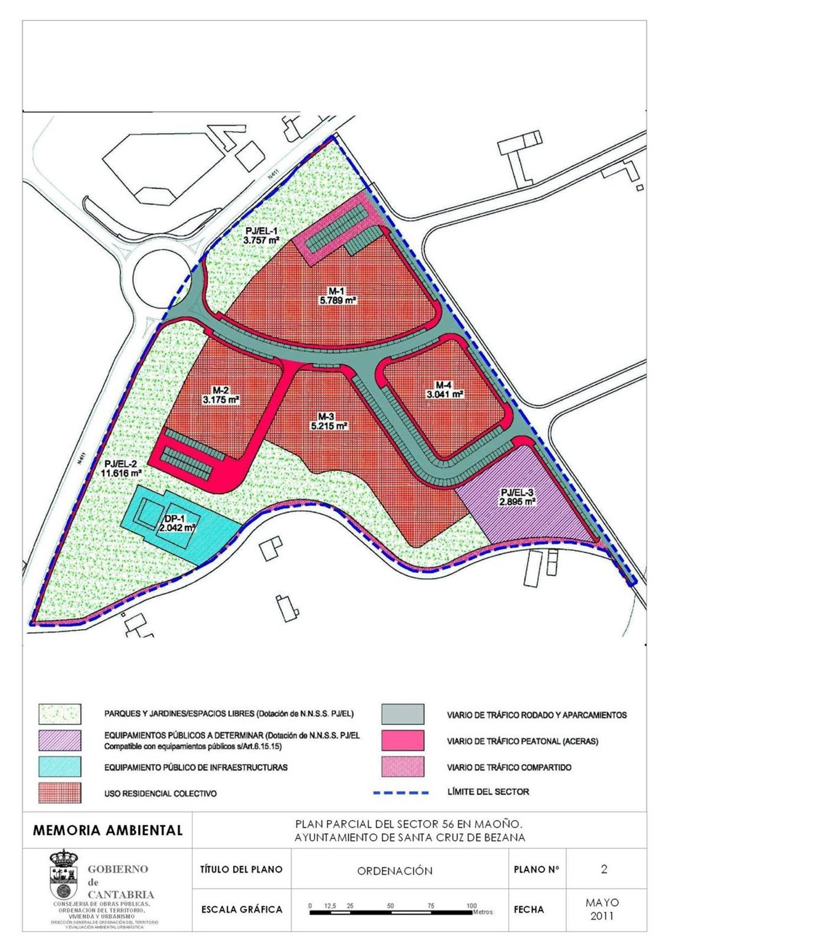
La Dirección General de Ordenación del Territorio y Evaluación Ambiental Urbanística del Gobierno de Cantabria ha formulado la memoria ambiental del Plan Parcial del Sector 56, de Suelo Urbanizable Delimitado, en el núcleo de Maoño (Azoños), en el municipio de Santa Cruz de Bezana.

Se trata de un plan parcial de iniciativa particular, promovido por la empresa Construcciones Carabaza Hidalgo. La superficie bruta del ámbito del Sector es de 50.819 m2, según las NNSS, y 50.286 m2, según medición resultante del levantamiento topográfico realizado a encargo de la propiedad.

Está delimitado al norte y al oeste por carretera nacional N-611 y por Suelo Urbanizable Delimitado y Suelo Urbano (de uso industrial o productivo), al sur con Suelo No Urbanizable Común y Suelo Urbano (de uso residencial), y al este por una carretera vecinal y Suelo Urbanizable No Delimitado, según consta en la memoria, a la que ha tenido acceso Europa Press.

El planeamiento y la legislación vigente fijan el número máximo de viviendas en 270 unidades, y la superficie máxima edificable, en 24.370 metros, resultando una superficie de 5.367,85 m2 de reserva destinada a sistema local de espacios libres de uso y dominio público, y de 2.924,49 m2 de reserva destinada a equipamientos. Las NNSS en la ficha de desarrollo del Sector fija la superficie de 15.672 m2 destinada a Parques y Jardines y Espacios Libres.

Respecto a la dotación de aparcamientos se reservan 244 plazas en función de la edificabilidad y 15 plazas para el área dotacional, resultando por tanto un total de 259 plazas de aparcamiento en vía pública, previéndose un total de 9 plazas para minusválidos de acuerdo con lo exigido por las NNSS. La reserva final destinada a aparcamiento representa un total de 270 plazas de aparcamiento privadas (en espacios privados y/o garajes).

Los criterios de ordenación se sustancian en distribuir la edificación de forma equilibrada en manzanas de dimensiones lo más regulares posibles, susceptibles de acoger actividades de relación en la proximidad de los hogares, mediante pequeños espacios libres o dotaciones comunitarias.

Asimismo las NNSS indican la necesidad de implantar arbolado, en la proporción de tres árboles por cada vivienda, resultando 810 unidades cuya ubicación deberá contemplarse en los proyectos de urbanización.

CONDICIONANTES Y CARENCIAS

La memoria ambiental, una vez revisado el ISA, constata algunas carencias o incertidumbres. Así, respecto del paisaje, señala que a pesar de que sí se ha incluido un plano con las cuencas visuales del ámbito de estudio, no se desarrolla un análisis paisajístico en profundidad, tal y como quedó recogido en el Documento de Referencia, aspecto este "relevante" si se tiene en cuenta la zona donde se ubica el sector, y en mayor medida por las actuaciones planteadas.

En cuanto al análisis del Plan Parcial, la memoria destaca que no presenta alternativas ni de ubicación ni de ordenación del sector. Sin embargo, en el ISA se presenta una alternativa de ordenación pero no se describe ni evalúa dicha alternativa desde una perspectiva ambiental, exponiéndose únicamente la alternativa seleccionada sin realizar una justificación pormenorizada de su elección.

Además señala que en el ISA no se incluyen muchos de los impactos ambientales que suelen resultar comunes a este tipo de proyectos, e indica que no se valoran en profundidad las afecciones paisajísticas que suponen las modificaciones introducidas sobre la topografía y la intrusión visual de las edificaciones, dado que el proyecto se emplaza en una zona de escasa densidad edificatoria, rodeada de suelos de protección de suelo rústico y en una zona alta respecto al entorno y a otras cuencas visuales.

En cuanto a los impactos ambientales más significativos del Plan Parcial, se destacan los impactos sobre la pérdida de suelo. Se trata, según la memoria ambiental, del impacto más evidente derivado de la ocupación de la edificación y de la urbanización.

Subraya además que este impacto es permanente ya que las actuaciones de urbanización y edificación tienen un efecto constante, con la añadidura de las infraestructuras previstas de abastecimiento y saneamiento, que pueden incluso incrementar su magnitud accidentalmente, o por funcionamiento.

Igualmente el informe destaca que aunque en el ISA el impacto de la ejecución de la urbanización sobre el paisaje se califica como moderado, debe considerarse como severo, ya que las medidas contempladas se consideran insuficientes. Así, señala que no se estudia la disposición de los volúmenes que --dice-- lógicamente tendrán que adaptarse a las rasantes finales.

Concluye por tanto que a pesar de que en el ISA se contemplan medidas de revegetación y se propone la integración armoniosa de las áreas de espacios verdes y vivienda, el impacto de la edificación residencial debe considerarse como muy significativo.

En sus determinaciones finales, la memoria ambiental señala que es necesario realizar una revisión sobre el modelo urbano actual de ciudad que se está generando en el municipio de Santa Cruz de Bezana.

Destaca al respecto que "son bien conocidas y han quedado de manifiesto" en las alegaciones recibidas, así como en los distintos informes emitidos por la CROTU en los últimos cuatro años, durante la tramitación de otros planes parciales de numerosos sectores llevados a cabo en este municipio, las "fuertes carencias estructurales" de las de que adolece su modelo urbano actual, que derivan en "fuertes divergencias" con las directrices y medidas de sostenibilidad urbana contenidas, por ejemplo, en la Estrategia Española de Sostenibilidad Urbana y Local.

Por ello, y previamente a la aprobación provisional del Plan Parcial, señala que el órgano sustantivo realizará una valoración sobre la factibilidad de la actuación planteada y la sostenibilidad global de la misma, teniendo en cuenta que su aprobación definitiva podría afectar a la viabilidad de otros Planes Parciales del municipio aprobados o en tramitación en laactualidad, pudiéndose requerir, asimismo, nuevas reservas de suelo para el cumplimiento de los estándares urbanísticos.

Contenido patrocinado