Barcelona y Generalitat estudian construir un centro de datos en el subsuelo de La Sagrera

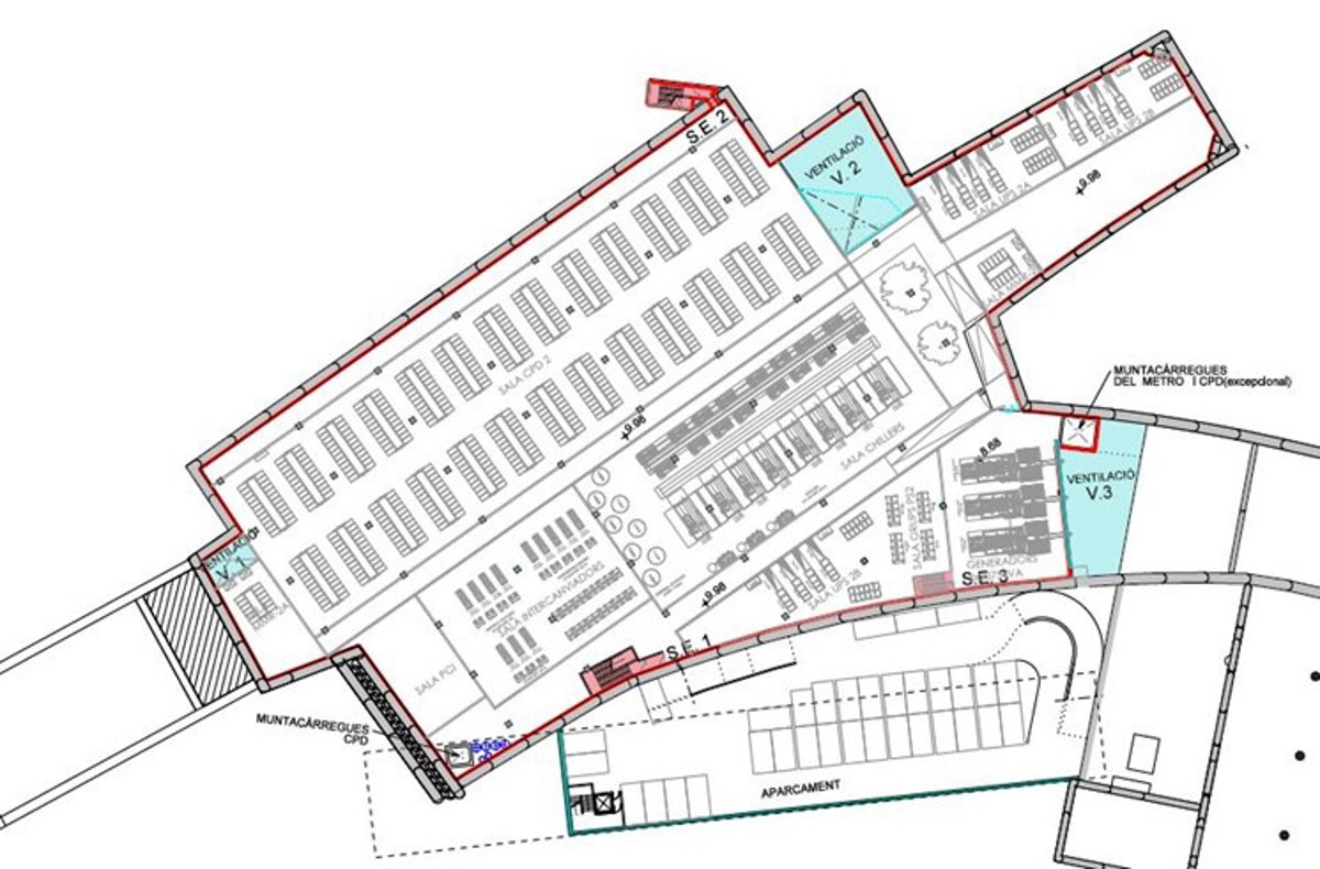
Plano del espacio para construir un centro de datos en el subsuelo de La Sagrera.
Plano del espacio para construir un centro de datos en el subsuelo de La Sagrera. - AYUNTAMIENTO DE BARCELONA
Europa Press Catalunya
Publicado: jueves, 25 abril 2024 12:50

BARCELONA 25 Abr. (EUROPA PRESS) -

El Ayuntamiento de Barcelona y la Generalitat han aprobado un convenio de colaboración para explorar la posibilidad de construir un centro de datos en el subsuelo de La Sagrera, en la zona del macropozo de las obras alrededor de las líneas L9 y L10 del Metro, informa el consistorio este jueves en un comunicado.

La Comisión de Gobierno del Ayuntamiento ha aprobado este convenio que tiene por objetivo "impulsar, en el ámbito de las respectivas competencias y de manera conjunta, los estudios, trabajos y actuaciones administrativas" para establecer las condiciones para ubicar este centro.

Ambas administraciones se han dado un plazo de 12 meses para estudiar de manera conjunta qué necesitarían para impulsar este proyecto, que ven como "una oportunidad y a la vez como una apuesta en un sector estratégico".

El Ayuntamiento asegura que su instalación, de hasta 10.600 metros cuadrados, "no supondría ningún retraso de las obras ni los plazos de las diferentes infraestructuras y equipamientos que se deben ubicar en la zona".

La infraestructura que albergaría este centro ya está construida, lo que "abaratece los costes de manera significativa", y la Xarxa Districlima que hay en la zona aportaría el valor añadido necesario para hacer una gestión eficiente de la energía, subraya el Ayuntamiento.

Además, destaca que las galerías de servicios que hay en la zona o la proximidad de la subestación eléctrica de La Sagrera "simplificarían igualmente la gestión de la instalación".

Últimas noticias sobre estos temas

Contenido patrocinado