Diputación de Cáceres adjudica el estudio geotécnico del que será Museo de Historia y Cultura de la Casa Pereros

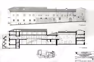
Plano del Museo de Historia Casa Pereros de Cáceres
DIPUTACIÓN DE CÁCERES
Europa Press Extremadura
Actualizado: viernes, 15 mayo 2015 15:31

CÁCERES 15 May. (EUROPA PRESS) -

La mesa de contratación de la Diputación de Cáceres ha adjudicado a la empresa 'Paymas Cotas' la realización del estudio geotécnico necesario para reconvertir la Casa-Palacio de Pereros, situada en la Ciudad Monumental cacereña, en Museo de Historia y Cultura de la provincia con un importe superior a los 3.500 euros.

El próximo martes, día 19 de mayo, la mesa volverá a reunirse para adjudicar la redacción del proyecto parcial de instalaciones, algunas de las cuales son "especialmente complejas" como la climatización, iluminación o integración domótica, según informa en nota de prensa la institución provincial.

El pasado mes de diciembre se aprobó el proyecto básico de adaptación de la Casa Pereros para poder albergar el Museo de Historia y Cultura, tras lo cual, en enero comenzó el desarrollo del proyecto de ejecución. Desde ese momento los distintos servicios técnicos de la Diputación han venido trabajando en la redacción y el desarrollo de la parte general del proyecto que actualmente se encuentra en la fase final.

Está previsto que a finales del mes de julio se haya completado el proyecto de ejecución tanto en su parte general como los documentos complementarios que lo conforman, asimismo, tras ello se sacaría a concurso la contratación de las obras de rehabilitación.

"CENTRO CULTURAL DE REFERENCIA"

La Diputación Provincial de Cáceres anunció en mayo de 2014 el cambio de uso de la Casa-Palacio de Pereros, que desde 1988 había funcionado como Colegio Mayor Universitario. Tras la reforma, se convertirá en la nueva sede del Museo de Historia y Cultura de Cáceres, cuyos fondos se trasladarán desde su ubicación actual en la Casa Pedrilla.

El objetivo es poner en marcha un "centro cultural de referencia" que suponga también un nuevo impulso para la oferta turística tanto de la ciudad de Cáceres, al convertirse en un verdadero centro cultural dentro del corazón del casco histórico, como de toda la provincia al poner en valor y dar a conocer al turista gran parte del patrimonio histórico y cultural del resto de municipios cacereños, según señala la Diputación en nota de prensa.

Además, se mantendrá abierto a iniciativas ciudadanas el antiguo salón de actos del Colegio Mayor y en él se podrán seguir desarrollando conferencias, seminarios, cursos, conciertos y, además, se incorporarán una sala de exposiciones temporales, espacios para talleres infantiles, sala de proyecciones así como una sala de Didáctica de la Historia.

También, dadas las mayores dimensiones del edificio (4.000 metros cuadrados), se abrirán nuevos espacios donde se podrán exponer al público más colecciones de personajes de la historia de la ciudad, hasta ahora guardadas por falta de espacio, que se sumarán a las ya existentes en el actual Museo.

Contenido patrocinado