La Diputación de Cáceres inicia la segunda fase del Centro de Día y Residencia Geriátrica de Caminomorisco

[Grupoextremadura] Obras Del Centro De Día Y Residencia Geriátrica En Caminomori
DIPUTACIÓN DE CÁCERES
Europa Press Extremadura
Publicado: lunes, 25 junio 2018 15:30

CÁCERES 25 Jun. (EUROPA PRESS) -

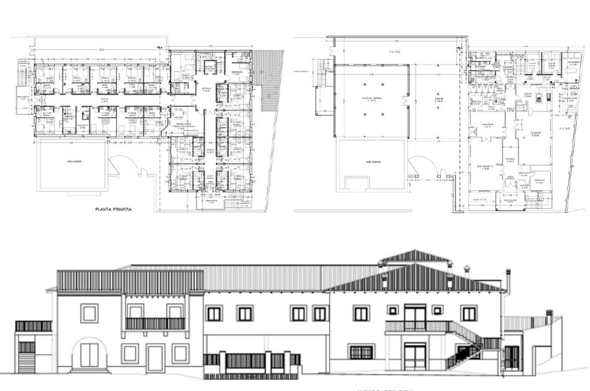
La Diputación de Cáceres ,a través de su Área de Infraestructuras, ha formalizado el contrato con la empresa EOC24 Arquitectura y Construcción SL para la construcción de la segunda fase del Centro de Día y Residencia Geriátrica mixta en Caminomorisco.

Con un presupuesto en esta segunda fase de 183.680 euros el proyecto general consiste en un edificio de uso residencial público y hospitalario de 1.688 metros cuadrados. En la planta baja estará ubicado el Centro de Día y en la primera planta las dependencias propias para residencia geriátrica mixta.

Así, en la primera planta se sitúan las habitaciones a ambos lados del pasillo de distribución central. Dispondrá de 7 habitaciones triples y 9 habitaciones dobles, (6 de asistidos y el resto de válidos) todas con baño, además de las dependencias destinadas a enfermería, rehabilitación y terapia ocupacional y almacén.

El edificio también consta de terraza con unos 36 metros cuadrados y está ubicado en el núcleo urbano, concretamente en la calle Rocandelario 23, en un solar titularidad municipal. El anuncio de formalización de contrato de obra fue publicado en el Boletín Oficial de la Provincia (BOP) del pasado 8 de junio, informa la diputación cacereña en nota de prensa.

Últimas noticias sobre estos temas

Contenido patrocinado