El nuevo CEIP Can Picafort dispondrá de seis unidades de infantil, 12 de primaria y un aula UEECO

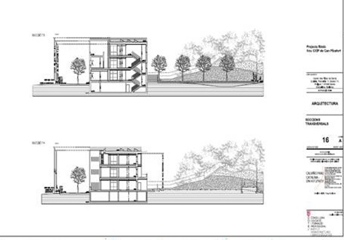
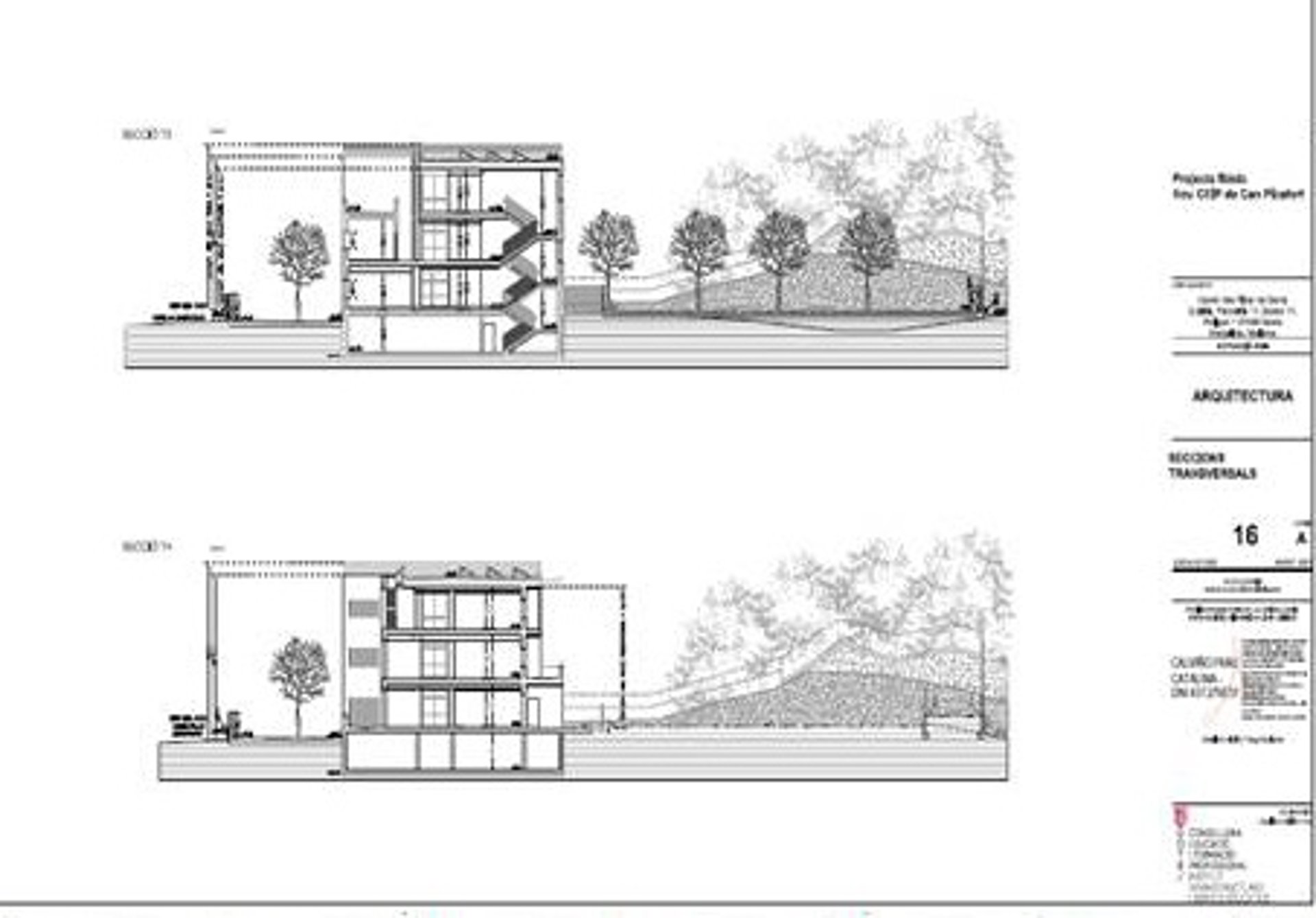
Plano del nuevo CEIP Can Picafort.
Plano del nuevo CEIP Can Picafort. - CAIB
Europa Press Islas Baleares
Publicado: viernes, 3 septiembre 2021 16:28


PALMA, 3 Sep. (EUROPA PRESS) -

La Conselleria de Educación y Formación Profesional ha entregado este viernes al Ayuntamiento de Santa Margalida, el proyecto básico del nuevo centro de infantil y primaria de Can Picafort, que tendrá dos líneas y dispondrá de seis unidades de infantil, 12 de primaria y un aula UEECO, para acoger un total de 450 alumnos.

Este proyecto cuenta con un presupuesto de 5.359.911,20 euros y un plazo de ejecución, una vez iniciadas las obras, de 14 meses.

El centro se ubicará en un solar situado en la zona de Santa Eullia, limítrofe con la zona de pinares no urbanizada. La superficie del solar es de 8.415 m2 y el CEIP tendrá una superficie construida de 3.606m2.

Según la Conselleria, el proyecto definitivo prevé una construcción siguiendo criterios "racionales, económicos y sostenibles". Por eso, se potenciarán los medios naturales para conseguir una buena climatización del centro, como porches, persianas o terrazas.

De acuerdo con la Conselleria, el centro podría entrar en funcionamiento el último trimestre del curso 2022-23.

Últimas noticias sobre estos temas

Contenido patrocinado