Comienza el procedimiento para la declaración de la Factoría Averly como Bien Catalogado

Plano de Averly
GOBIERNO DE ARAGÓN
Europa Press Aragón
Actualizado: martes, 17 diciembre 2013 20:48

ZARAGOZA 26 Ago. (EUROPA PRESS) -

La dirección general de Patrimonio del Gobierno de Aragón ha iniciado el expediente para la declaración de la Factoría Averly como Bien Catalogado del Patrimonio Cultural Aragonés. Este procedimiento administrativo comienza tras un periodo exhaustivo de estudio y análisis del inmueble y su entorno.

La resolución, que publicará en el BOA y estará abierta a información pública, establece la protección de aquellos elementos (inmuebles, archivo y bienes muebles) que componen el denominado núcleo histórico de Averly.

"La incoación del expediente supone ya la protección de este patrimonio material e inmaterial. Concretamente, la protección afecta a los elementos que representan la esencia de Averly como villa-factoría con su portada y acceso; vivienda y jardín; taller de maquinaria; sus tres redes internas de funcionamiento (fuerza motriz hidráulica, red de transporte y red de transmisión mecánica); bienes muebles (maquinaria, modelos molde, productos finales y Archivo documental", ha explicado el director general de Patrimonio Cultural, Javier Callizo.

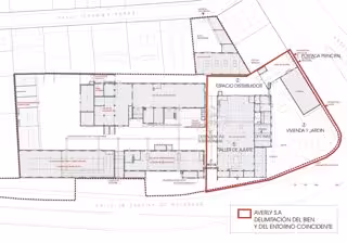
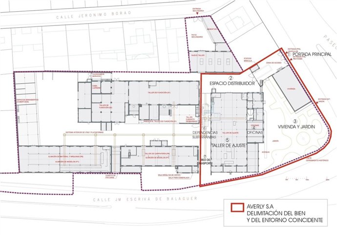
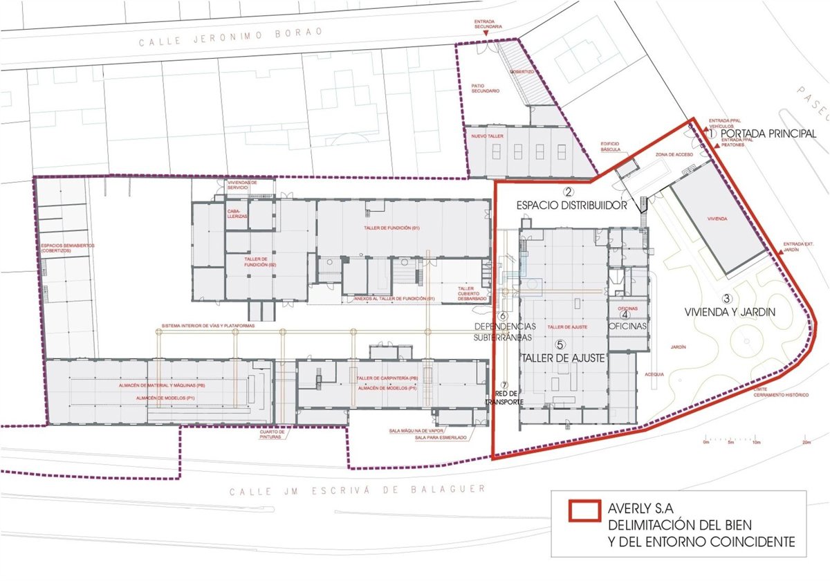
Así, y una vez valoradas las distintas partes que se conservan en la Factoría Averly, se considera Bien Catalogado la portada principal de entrada al conjunto de instalaciones con todos sus elementos estructurales y decorativos, así como el espacio distribuidor de acceso.

También se incluye el edificio de vivienda del propietario y su jardín ya que se considera que estos espacios son la esencia del modelo de villa-factoría.

La vivienda se cataloga tanto en su fachada de cuatro lados, con todos los elementos exteriores de que dispone, como en su interior, en lo que corresponde a su estructura interna, disposición y decoración original.

El jardín comprende y se define por sus elementos principales que son la acequia, distribución de los parterres y el mobiliario que se determine como original, a fin de respetar su carácter de jardín romántico.

OFICINAS

Asimismo se cataloga el edificio de oficinas, lindante con el jardín. La protección se extiende tanto al continente como al contenido, con la distribución original y el mobiliario conservado. Es un ejemplo único de oficinas y despachos de finales del siglo XIX y comienzos del siglo XX.

El Taller de Ajuste se incluirá en su totalidad, con las partes anexas como la parte trasera contraria a la puerta de acceso, el despacho de control horario y fichaje, el despacho del jefe de taller, y un espacio a la izquierda que daba acceso a la antigua calderería, hoy desaparecida; la nave principal; el almacén de herramientas, con todo el mobiliario; así como la red de transmisión motriz emplazada en el taller de ajuste y el sistema de iluminación.

También se cataloga la red y dependencias subterráneas de canalización, salto de agua y generación de potencia mecánica y eléctrica, formado tanto por la acequia Romareda, ya sin agua, que entra desde el jardín, canalizándose bajo las oficinas y el taller de ajuste, como por los subterráneos que aparecen en tres niveles diferentes.

La red de transporte interno mediante vagonetas sobre raíles y cambiadores de dirección de hierro; concretamente los raíles y cambiadores que se ubican entre el Taller de Ajuste y la nave de fundición, son otros elementos a estudiar en la catalogación.

De este modo, el límite espacial de protección vendría dado por la actual fachada urbana formada por la entrada principal y la misma fachada de la vivienda, la verja de hierro y parte del muro de obra que limita con la calle Escrivá de Balaguer.

Por el interior, el límite de la zona protegida discurre por el camino que bordea la nave de ajuste. El límite continúa por la fachada del taller nuevo, sin incluirla, y el muro que separa la finca de la colindante.

MATERIAL

Respecto al material mueble considerado como Bien Catalogado se precisa conservar una muestra del mismo. Este queda divido en tres categorías: maquinaria y herramienta de producción; productos fabricados; y moldes y modelos, positivos y negativos. (Se adjunta listado de los 115 elementos que forman parte de la catalogación)

Por último, el Archivo documental de la Factoría Averly es otro de los elementos catalogados. El archivo, considerado de gran interés patrimonial y documental, refleja la historia de la empresa a lo largo de sus más de 150 años de existencia y al mismo tiempo de la industrialización aragonesa. Su contenido se estructura en 31 series.

Entre ellas se distinguen en líneas generales: Libros de correspondencia, Libros de salida y entrada de mercancía, facturas y recibos, proyectos, planos, bocetos, croquis y diseños, Libro de diplomas, colección de negativos fotográficos, Libro de balances, Libros de personal laboral y material publicitario (catálogos, publicidad).

Javier Callizo, ha recordado que una vez publicada la incoación del expediente en el BOA se abrirá un periodo de información pública. Una vez finalizado este proceso de alegaciones el expediente deberá pasar por Consejo de Gobierno.

LA FACTORÍA AVERLY DATA DE 1853

La Factoría Averly toma el nombre de su fundador, Antonio Averly Françon, ingeniero francés originario de Lyón, que llegó a Zaragoza sobre 1851 a fin de ocuparse de la parte técnica de la Sociedad Maquinista Aragonesa, cuya constitución definitiva se fecha en 1853.

Esta entidad se ubicaba en el barrio de Torrero, junto al Molino de Baranda y fue la primera fundición aragonesa que utilizó como fuerza motriz la potencia de las aguas del Canal Imperial a su paso por Zaragoza, en la llamada acequia de San José.

En 1864, el ingeniero Averly se independiza de la Sociedad Maquinista Aragonesa y crea los Talleres de maquinaria Averly, instalándose en un primer momento en la calle San Miguel 8, de Zaragoza, que actuará además como sucursal de la gran fabrica familiar que funcionaba en Lyon. En 1880 Averly traslada las instalaciones a la actual ubicación en ronda del Santo Sepulcro, en el paseo María Agustín.

Las nuevas instalaciones siguen el modelo de villa factoría, en el cual el propietario y director de la fábrica residía junto con su familia en una vivienda anexa a las mismas dependencias fabriles. Analizada la tecnología y la maquinaria se puede afirmar que dicha empresa ha sido relevante en la primera revolución industrial en la ciudad de Zaragoza.

Contenido patrocinado