El Ayuntamiento de Cáceres mejora la iluminación pública con 90 nuevas farolas en El Junquillo y el Paseo Alto

El Ayuntamiento de Cáceres mejora la iluminación pública con 90 nuevas farolas en El Junquillo y Paseo Alto
El Ayuntamiento de Cáceres mejora la iluminación pública con 90 nuevas farolas en El Junquillo y Paseo Alto - AYUNTAMIENTO DE CÁCERES
Europa Press Extremadura
Publicado: viernes, 16 agosto 2024 16:23

CÁCERES 16 Ago. (EUROPA PRESS) -

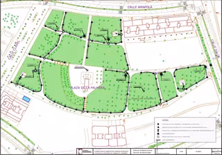
El Ayuntamiento de Cáceres ha aprobado la instalación de un total de 90 nuevas farolas con luz LED que dotarán de alumbrado público las zonas del Parque las Palmeras y caminos del Olivar, de la barriada de El Junquillo, y los caminos y Plaza de Ibarrola en el Paseo Alto, con un presupuesto total de 143.000 euros.

En concreto se colocarán 20 nuevas luminarias, de 4 metros de altura con tecnología LED de bajo consumo, alta eficiencia energética, larga durabilidad y menor impacto ambiental, en los caminos y la Plaza de Ibarrola del Paseo Alto.

Esta intervención tiene un presupuesto de 24.577 euros, y con ella se pretende garantizar "una mayor seguridad en esta área y dar respuesta a una petición que tanto nos demandan los vecinos y vecinas", ha dicho el alcalde en funciones, Jorge Suárez.

Además, se ubicarán 70 farolas de 5 y 6 metros de altura en el parque de las Palmeras y en los caminos del Olivar, en la urbanización el Junquillo. Estarán equipadas también con tecnología LED y proyectores con tres disposiciones diferentes de puntos de luz. La intervención tiene un presupuesto de 118.430 euros.

"Se trata de áreas peatonales que hasta ahora no contaba con alumbrado público por lo que los vecinos y vecinas no podían hacer un uso seguro de estos espacios durante la noche", ha explicado Suárez, que ha añadido que con esta actuación "queda plasmado el compromiso de la administración local con la mejora continua de los espacios públicos y el bienestar de sus habitantes".

La financiación de ambas actuaciones se llevará a cabo con fondos propios del Ayuntamiento de Cáceres con cargo al remanente de tesorería, informa el consistorio en nota de prensa.

Contenido patrocinado