El nuevo CEIP de Sa Pobla tendrá dos líneas y capacidad para 450 alumnos

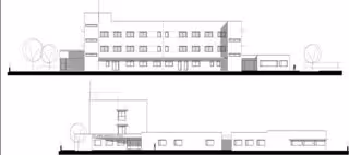
Proyecto del nuevo CEIP de Sa Pobla.
Proyecto del nuevo CEIP de Sa Pobla. - CAIB
Europa Press Islas Baleares
Publicado: jueves, 5 mayo 2022 11:01


PALMA, 5 May. (EUROPA PRESS) -

La Conselleria de Educación y Formación Profesional ha presentado este jueves el anteproyecto del nuevo centro de Infantil y Primaria de Sa Pobla, que será de dos líneas y contará con seis unidades de infantil y 12 de primaria, además de un aula UEECO para acoger a un total de 450 alumnos.

Según ha informado la Conselleria de Educación, el proyecto tiene un presupuesto aproximado de un 6 millones de euros y un plazo de ejecución de 12 meses.

El centro se ubica en un solar situado a las afueras del núcleo de Sa Pobla, cerca del polígono industrial de Can Peu Blanc. La superficie del solar es de 11.732,08 m2 y el CEIP tendrá una superficie construida de 3.780 m2 distribuidos en planta baja y dos alturas.

Para infantil está previsto un aulario con acceso independiente y con todas las aulas orientadas a sur. Al inicio del pabellón se encuentra un aula polivalente y el porche de juegos. El patio central se destina en patio de juegos de infantil.

Los espacios de primaria se desarrollan en tres plantas. En las superiores se ubican las aulas tipo y de pequeños grupos. En la planta inferior se hará el comedor, la cocina, los espacios complementarios, el aula UEECO y el gimnasio y vestuarios, así como una sala de instalaciones.

En los exteriores se hará la zona de aparcamiento y para los accesos del centro se crean espacios de espera y recreo ampliando la acera.

El nuevo centro de educación infantil y primaria se construirá bajo criterios racionales, económicos y sostenibles. Por eso se potenciarán los medios naturales como porches, cenadores, persianas o terrazas, para conseguir una buena climatización del centro optimizando los recursos.

A la presentación del proyecto han asistido el gerente del Ibisec, Miquel Coll, y el arquitecto responsable del proyecto, Guillem Vanrell; así como el alcalde del municipio, Lloren Gelabert, acompañado de diferentes representantes de la corporación municipal y de la comunidad educativa de Sa Pobla.

Últimas noticias sobre estos temas

Contenido patrocinado