ACpT cree que el futuro Centro de Emprendedores "no responde" a las necesidades de los ciudadanos

Anuncia que usar "todos los medios a su alcance" para informar al ciudadano sobre el proyecto e impedir así lo ve como una "locura"

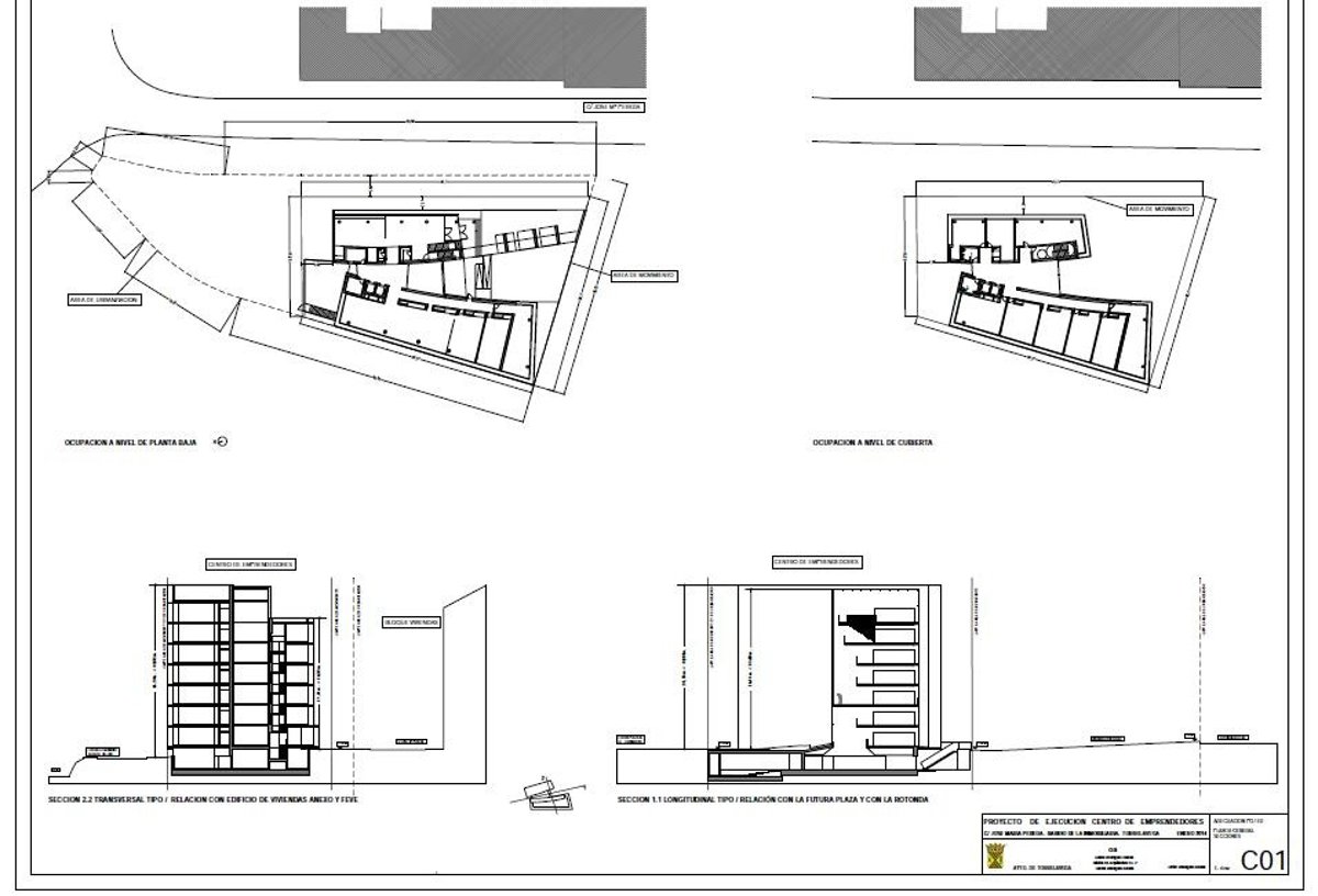
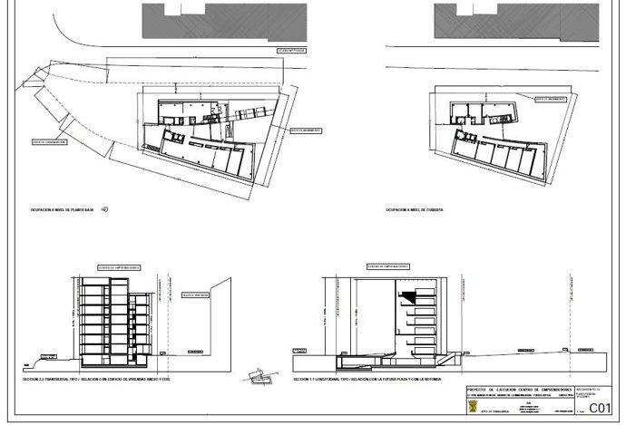
Planos del proyecto del Centro de Emprendedores de Torrelavega
ACPT
Europa Press Cantabria
Actualizado: martes, 29 abril 2014 18:16

TORRELAVEGA, 29 Abr. (EUROPA PRESS) -

Asamblea Ciudadana por Torralvega (ACpT) ve una "locura" y un "despilfarro" de 5,5 millones de euros la construcción del Centro de Emprendedores en la finca de La Carmencita, en el barrio de La Inmobiliaria, un "proyecto faraónico" que, a su juicio, "no responde" a las necesidades de los torrelaveguenses.

Así lo ha asegurado esta martes la formación política en una rueda de prensa, en la ha opinado que este centro "no responde a ningún tipo de demanda social o ciudadana".

Ha señalado que, en la actualidad, "no hay nadie" en lista de espera para usar el centro de emprendedores que se encuentra en las antiguas escuelas de Torres, que está, según ha dicho, "a un 50 por ciento de su capacidad" y que tiene "el mismo uso" que el que se va a construir.

En su opinión, y a la vista del proyecto aprobado por el Pleno municipal con el apoyo de PP, PRC y PSOE, han opinado que está "absolutamente sobredimensionado" y se ha preguntado si hay demanda en Cantabria para llenar este edificio.

EL PROYECTO

Según ha expuesto la formación, el Centro estará compuesto por dos bloques, el este de cinco plantas y el oeste de 6, unidos por la planta baja.

Contará también, según ACpT, con una planta semisótano en la que habrá dos espacios diferenciados, el primero constituido por una gran mesa de "networkiing" para que los "emprendedores" puedan alquilar, y el segundo, por un salón de actos.

En la planta baja habrá un gran recibidor además de las oficinas de la ADL (cuya continuidad está en peligro, afectada por la Ley de Racionalización y Sostenibilidad del Régimen Local).

El resto de plantas de los dos bloques albergarán oficinas de 20 y 30 m2 de alquiler para emprendedores.

Además, ACpT se ha cuestionado acerca de si responde con él a las necesidades de los ciudadanos, algo que, a su juicio, "parece claro que no".

"Nos encontramos nuevamente ante una obra favorecerá a los de siempre, a los constructores, a los amigos del hormigón, a los que con sus ansias de enriquecerse y a base de la especulación nos han llevado a esta situación de crisis, paro y pobreza", ha afirmado ACpT.

Además, otra de las "dudas" que ha reconocido tener --y que cree que también la alberga toda la Corporación-- es "el grado de implicación que tendrá el Gobierno de Cantabria en el mantenimiento y conservación de este Centro".

Ha resaltado que, a día de hoy, "no hay ningún tipo de compromiso escrito", solo "buenas palabras" del Gobierno, de las que "no se fía" ACpT.

"GATO POR LIEBRE"

La formación ha señalado que los vecinos de La Inmobiliaria lo que reclaman son zonas verdes, espacios públicos, lugares de encuentro, algo que --dice-- se les "prometió" a través del Urban.

"Siete años después de aquella promesa podemos decir que a los vecinos de La Inmobiliaria se les ha dado gato por liebre, espacios públicos o verdes nuevos ninguno", ha señalado ACpT.

La formación ha opinado que con los casi 5,5 millones que se van a dedicar al Centro se podrían acometer obras que, a su juicio, "sí tienen una demanda entre la población", como la ampliación de la Escuela Oficial de Idiomas, la remodelación del Ayuntamiento, la construcción de un nuevo conservatorio o sufragar el 10 por ciento que tendría que aportar Torrelavega para que el soterramiento sea una realidad.

ACpT considera que PP, PRC y PSOE incurren en una "irresponsabilidad" con este proyecto y demuestran "la falta de ideas que tienen para esta ciudad más allá de la receta de siempre: Cemento, grija, arena y agua".

Además, ha anunciado que, dado "el gran desconocimiento" que, en su opinión, tienen los ciudadanos sobre el proyecto, su coste y su contenido, va a "usar todos los medios a su alcance para informar" y organizar a la población" para impedir lo que considera una locura.

Contenido patrocinado