El nuevo planeamiento del Museo de Bellas Artes de València prevé derribar el muro perimetral y un jardín de esculturas

Nuevo planeamiento del San Pío V
Nuevo planeamiento del San Pío V - AYUNTAMIENTO DE VALNCIA
Europa Press C. Valenciana
Publicado: miércoles, 24 junio 2020 18:37

VALNCIA 24 Jun. (EUROPA PRESS) -

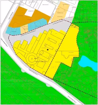
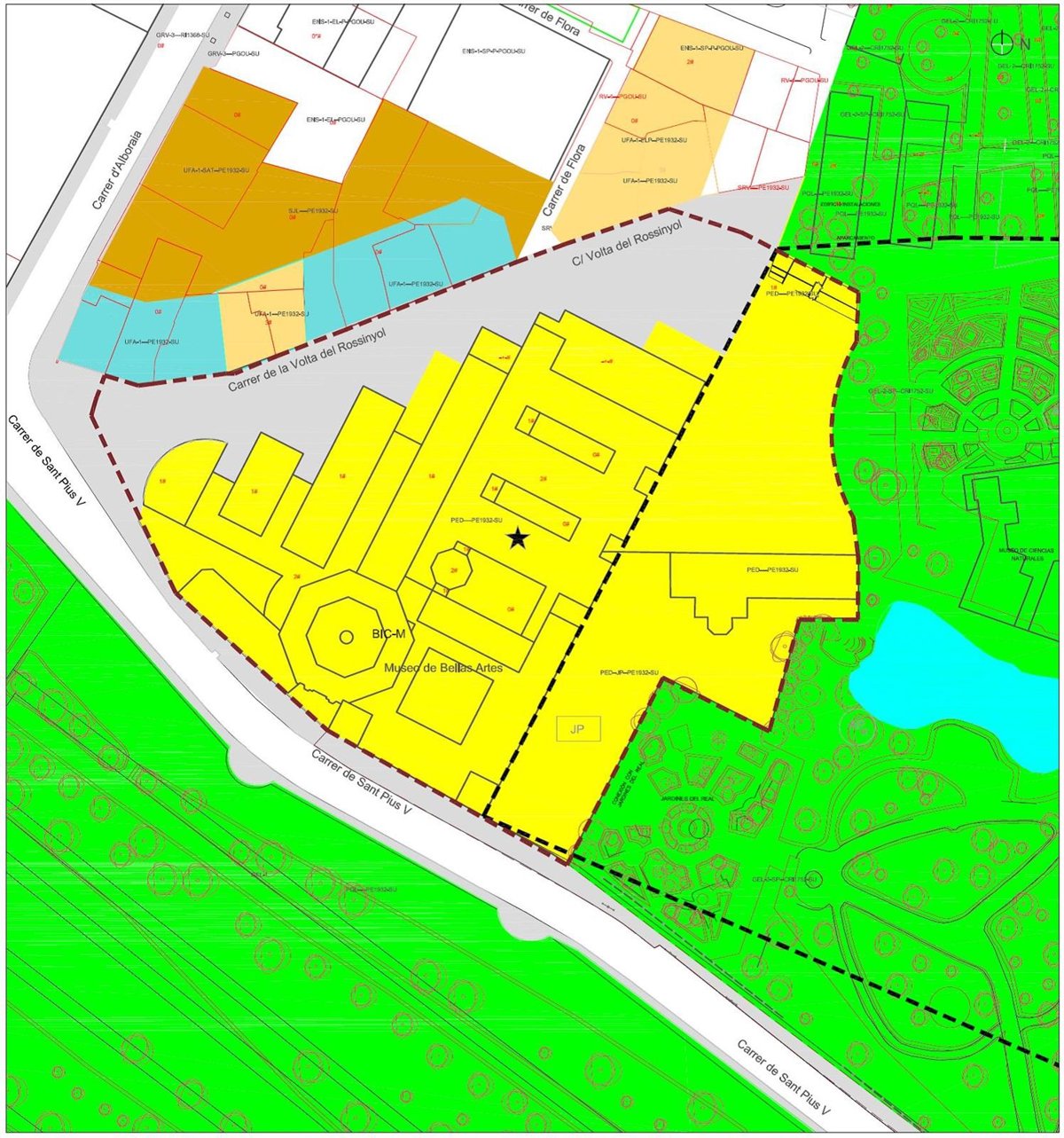
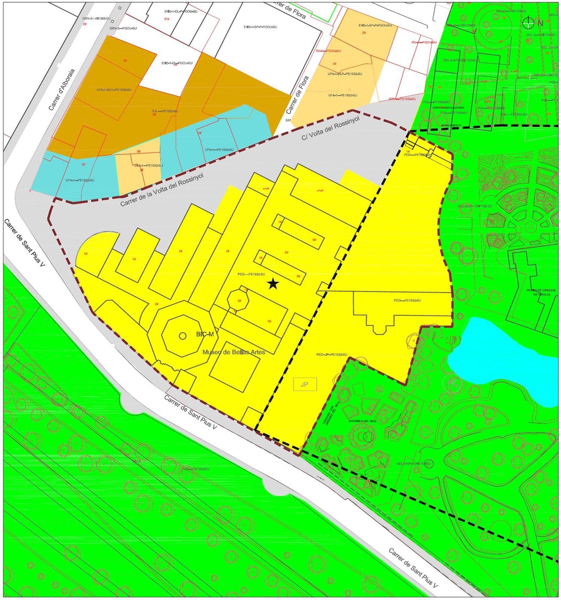
El pleno municipal del Ayuntamiento de Valncia aprobará este jueves la modificación de planeamiento del Museo de Bellas Artes San Pío V en la reunión ordinaria del mes de junio.

Así lo ha anunciado la vicealcaldesa y concejala de Desarrollo y Renovación Urbana, Sandra Gómez, quien ha explicado que el nuevo planeamento "supone una redelimitación del museo, que derribará el muro perimetral para ganar espacio público, e incluirá un jardín de esculturas".

La aprobación provisional del cambio de planeamiento del Museo de Bellas Artes San Pío V tiene sus orígenes en el 2016. En el Plan Especial actual, se califica el edificio del Museo de Bellas Artes de Valncia y sus espacios exteriores anexos como Educativo-Cultural, mientras que el área noroeste de ampliación del museo, que forma parte de los actuales Jardines de Viveros y es la zona prevista para el proyecto del Ministerio, posee la clasificación de GEL-2/P-QL (jardín).

El proyecto propone derribar el muro recayente a la parte trasera del museo, en la calle Vuelta del Ruiseñor, que ganará todo el espacio público hasta la fachada del edificio. Por otra parte, el museo se amplía con un jardín de esculturas que albergará una nueva entrada, en la parte que da a Viveros.

Por todo ello, es necesario modificar el planeamiento actual del entorno que es el Plan Especial de Protección del BIC Museo San Pio V. En consecuencia, el suelo que propone el proyecto del ministerio como nuevo límite del Museo con la ampliación pasará a clasificarse como educativo-cultural, mientras que el espacio ganado entre el muro y el edificio pasará a ostentar una calificación de Red Viaria. Esto permitirá realizar la correspondiente permuta de terrenos entre el Ministerio y el Ayuntamiento.

Por otra parte, el PEP-EBIC establece protección para el Museo y el Parque de Viveros. Concretamente, para el Museo de Bellas Artes se establece el nivel de Bien de Interés Cultural (BIC) en la categoría de Monumento. No obstante, en la ficha de catálogo se fija que en los espacios libres anexos al museo, objeto de la Modificación Puntual del Planeamiento, no están protegidos. Para el Jardín de Viveros, se establece un nivel de protección de BIC como Jardín Histórico de Relevancia Local.

"En resumen, las previsiones de cambio de superficie en la modificación contempla un total de 2.539 m2 que pasarán de ser a ser Red Viaria y 1.329 m2 que dejarán de ser GEL2/P-QL (Parque) para ser GSP-2/P-ED (Educativo-Cultural). Este aprobado provisional de cambio de planeamiento supone un paso adelante para regenerar el entorno del Museo de Bellas Artes con nuevos espacios públicos y peatonales, parques urbanos y edificios protegidos", ha explicado Gómez.

Tras esta aprobación provisional se remitirá a la Conselleria para su aprobación definitiva, han indicado las mismas fuentes.

Contenido patrocinado

Hemeroteca en Valencià d'Europa Press