Sale a licitación la segunda fase de la reordenación de la Ronda de la Pizarra de Cáceres por 663.000 euros

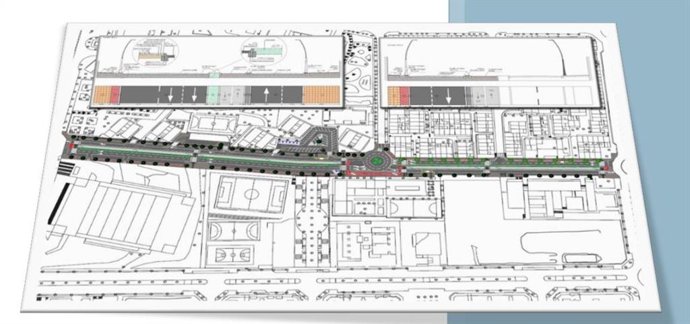
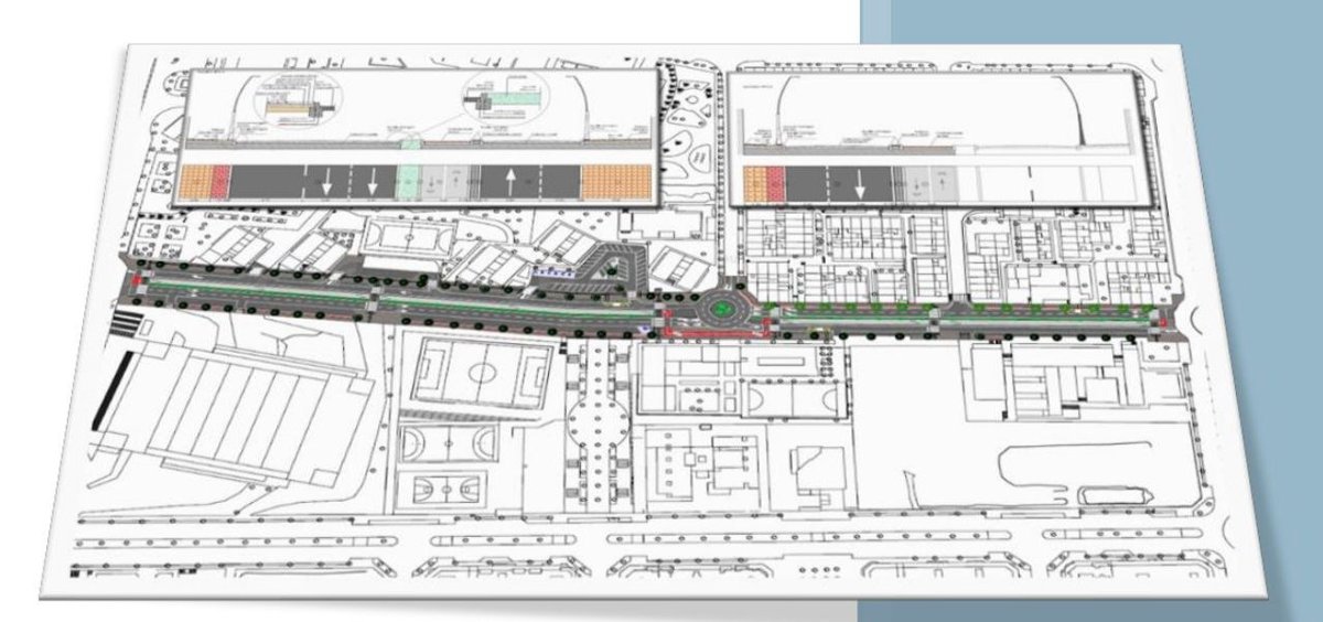
Proyecto de reordenación de la Ronda de la Pizarra de Cáceres
Proyecto de reordenación de la Ronda de la Pizarra de Cáceres - AYUNTAMIENTO DE CÁCERES
Europa Press Extremadura
Publicado: lunes, 11 julio 2022 13:29

CÁCERES 11 Jul. (EUROPA PRESS) -

El Ayuntamiento de Cáceres ha sacado a licitación la segunda fase del proyecto de reordenación de la Ronda de la Pizarra, por un importe de 662.999,99 euros y un plazo de ejecución de 8 meses. El plazo de presentación de ofertas de las empresas interesadas finaliza el 1 de agosto.

En esta segunda fase del proyecto se incluye un carril bici segregado y bidireccional, desde la avenida de la Hispanidad hasta la avenida de Dulcinea, para favorecer la movilidad sostenible y conectar los distintos carriles bici de la ciudad ya construidos, o los que están en estudio, como es el caso del actual proyecto de carril bici a lo largo de la avenida de la Hispanidad.

Este carril bici que se ha incluido en el proyecto forma parte del acuerdo del equipo de Gobierno con Unidad Podemos para la aprobación de los Presupuestos Municipales de 2022.

También se ampliarán las aceras y se les dará continuidad para adecuarlas a la ordenanza municipal de accesibilidad; se ampliarán plazas de aparcamiento en la zona dotacional y se reducirá la mediana existente para mejorar la seguridad de la circulación. Al ampliar la acera existente hasta los 3 metros, los dos carriles de circulación que hay ahora mismo se ven disminuidos a uno, que se proyecta de 4 metros.

En cuanto al carril bici será de 3 metros y se colocará junto a la mediana, más una zona de protección de 80 centímetros para asegurar la seguridad de los ciclistas. Al otro lado del carril bici, la mediana se diseña de 1,5 metros para asegurar la seguridad de los peatones, así cómo proteger a los ciclistas.

GLORIETA EN LA INTERSECCIÓN CON LA CALLE ANDALUCÍA

Dada la existencia de grandes dotaciones deportivas en la zona de los pares desde la avenida de la Hispanidad hasta la nueva glorieta con la calle Andalucía, con gran afluencia de vehículos, se transforman los aparcamientos en línea por aparcamientos en baterías, para tener un mayor número de plazas de aparcamiento en la zona.

Cabe recordar que para un correcto encuentro de las dos fases del proyecto se proyectó una glorieta en la intersección de la Ronda con la calle Andalucía, que a su vez mejorará la intersección actual. La zona de acerado de los pares situada entre la avenida de Andalucía y la avenida de Dulcinea no se renueva completa en el presente proyecto dado que es el que mejor se encuentra.

La Ronda de la Pizarra cuenta actualmente con tres zonas muy diferenciadas en cuanto a tipología de edificaciones, marcadas por la época de su construcción y su correspondiente urbanización.

Por un lado, la zona de los impares ubicada desde la calle Andalucía hasta la avenida de Dulcinea, también conocida como Las 300, que cuenta con edificaciones residenciales unifamiliares pareadas datadas de 1970. Por otro lado, se encuentra la zona de los impares desde la avenida de la Hispanidad hasta la calle Andalucía, con edificaciones aisladas no alineadas en bloque de hasta 8 plantas, datadas de 1980.

Y por último, se encuentra la zona de los pares, con grandes parcelas de equipamiento pertenecientes al polígono del Nuevo Cáceres, datado aproximadamente de 1995.

Aunque se han realizado numerosas intervenciones de conservación y mantenimiento en la zona, en la actualidad se está acometiendo su reordenación completa en dos fases. La primera que se está llevando a cabo en la zona de los impares desde la calle Andalucía hasta la avenida de Dulcinea, que es la zona más antigua y la que cuenta con mayores carencias.

Y la segunda, que ahora sale a licitación, y se realizará en la zona de los pares desde la calle Andalucía hasta la avenida de Dulcinea, así como el resto de la avenida que va desde la calle Andalucía hasta avenida de la Hispanidad, que no se reordenó en la fase 1.

El concejal de Infraestructuras, Andrés Licerán, ha recordado que "esta vía necesitaba una intervención para modernizarla, hacerla accesible y aumentar sus dotaciones de arbolado", ya que une barrios tan importantes como Casa Plata, Nuevo Cáceres, Las 300, Veracruz y Moctezuma.

La actuación mejorará la accesibilidad de los acerados del barrio de Las 300, "donde viven muchas personas mayores que tienen que bajar a la calzada para poder transitar por ella", ha recordado Licerán.

Contenido patrocinado