Educación convoca el concurso de ideas para la redacción del proyecto del nuevo Districte de les Arts

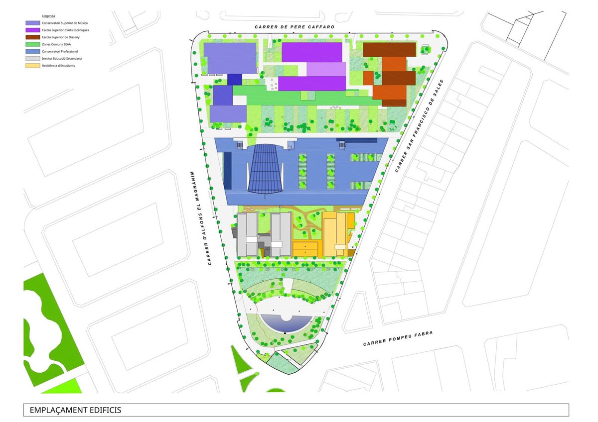
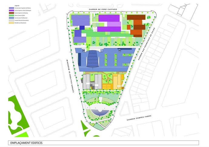
Plano con la distribución de los edificios en el futuro Districte de les Arts.
Plano con la distribución de los edificios en el futuro Districte de les Arts. - CAIB
Europa Press Islas Baleares
Publicado: lunes, 7 abril 2025 12:24

PALMA 7 Abr. (EUROPA PRESS) -

La Conselleria de Educación y Universidades, a través del Instituto Balear de Infraestructuras y Servicios Educativos (Ibisec), ha convocado el concurso de ideas para la redacción de los proyectos del Conservatorio Superior de Música, la Escuela Superior de Arte Dramático y la Escuela Superior de Diseño, que se construirán en el nuevo Districte de les Arts de Palma, junto al actual Conservatorio.

El recinto también acogerá la nueva residencia universitaria, con capacidad para 120 personas, y un nuevo instituto de estudios integrados (PEI), según ha recordado en nota de prensa el departamento que dirige Antoni Vera.

La convocatoria del concurso de ideas se ha realizado mediante la publicación en el Diario Oficial de la Unión Europea (DOUE) y posteriormente en la Plataforma de Contratación del Sector Público.

A partir de ahora las personas o despachos de arquitectos interesados en participar disponen de un mes para presentar los méritos relacionados con su experiencia en el sector en la primera fase. Una comisión evaluadora seleccionará a los tres mejores candidatos, que pasarán a la siguiente fase.

En la segunda fase, los tres equipos candidatos presentarán la documentación de su propuesta de forma anónima, identificada únicamente con un lema.

El jurado estará formado por 12 miembros, entre ellos el director general de Vivienda y Arquitectura de la Conselleria de Vivienda, Territorio y Movilidad, que actuará como presidente; técnicos del Ibisec y de la Conselleria de Educación y Universidades, así como los directores del Conservatorio Superior de Música, de la nueva Escuela Superior de Arte Dramático y de la nueva Escuela Superior de Diseño, evaluarán las tres propuestas según criterios técnicos y las puntuarán. Una vez determinado el ganador, se revelará la identidad de los participantes finalistas.

El equipo ganador recibirá un premio de 15.000 euros y podrá encargarse del proyecto básico y ejecutivo, además de la dirección de obra del Conservatorio y de las dos Escuelas, con un presupuesto previsto de 2,2 millones de euros. El segundo y el tercer clasificado recibirán un premio de 10.000 euros cada uno.

TRANSFORMACIÓN DE LOS ESTUDIOS ARTÍSTICOS SUPERIORES

La presidenta del Govern, Marga Prohens, y el conseller de Educación y Universidades, Antoni Vera, presentaron el proyecto del Districte de les Arts este mes de marzo.

Con el nuevo Districte de les Arts, incluido en el Plan de Inversiones Educativas, el Govern reafirma su compromiso con el impulso y la transformación de los estudios superiores artísticos en el archipiélago.

Este proyecto estratégico, con una superficie aproximada de 20.000 m2 y una inversión global de casi 70 millones de euros, tiene como objetivo mejorar la calidad de estas enseñanzas y, al mismo tiempo, reforzar su visibilidad y accesibilidad para toda la ciudadanía.

Para hacerlo posible, se creará un entorno educativo innovador en el que los edificios destinados a estos estudios se integrarán en un gran parque urbano con el fin de fomentar la interacción entre la arquitectura, la naturaleza y la creatividad.

Según el Govern, esta iniciativa no solo fortalecerá la oferta formativa artística, sino que también favorecerá la conexión entre el talento emergente y la comunidad, y consolidará el Districte de les Arts como un centro de referencia para la innovación y la creación en el ámbito cultural.

Últimas noticias sobre estos temas

Contenido patrocinado