El Govern dispone del proyecto básico para la creación del centro cultural artístico Junyer Canals en Dei

Proyecto básico del centro cultural Junyer Casals
Proyecto básico del centro cultural Junyer Casals - CAIB
Europa Press Islas Baleares
Publicado: lunes, 1 julio 2019 16:26


PALMA DE MALLORCA, 1 Jul. (EUROPA PRESS) -

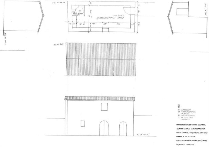
La Conselleria de Cultura, Participación y Deportes y la de Territorio, Energía y Movilidad en funciones ya disponen del proyecto básico del que tiene que ser el centro cultural artístico dedicado al matrimonio Junyer Canals, en Llucalcari, Dei, cuando se cumplen 25 años de la donación, en 1994, de dos casas.

Según han explicado en un comunicado, el matrimonio del pintor Joan Junyer y Dolors Canals donaron a la Comunidad las dos casas de Ca Mad Bet y Can Dos con la condición que se crease un centro cultural por parte del Govern. En estas propiedades, el artista recibió el legado pictórico de la pasión mallorquina de su tío Sebasti Junyer.

En este sentido, con el proyecto básico, se da luz verde al proyecto de reforma de las casas y la adecuación de los terrenos, cuya limpieza ya se hizo hace meses, para la creación de unos espacios que se destinarán a una residencia para artistas y a un centro de exposiciones.

Más concretamente, el texto está redactado por Oscar Canalis y es el resultado de haber levantado la planimetría de las propiedades y haber convocado el concurso arquitectónico de ideas para la rehabilitación de las casas.

Contenido patrocinado