A licitación por 4,5 millones el Centro de Emprendedores

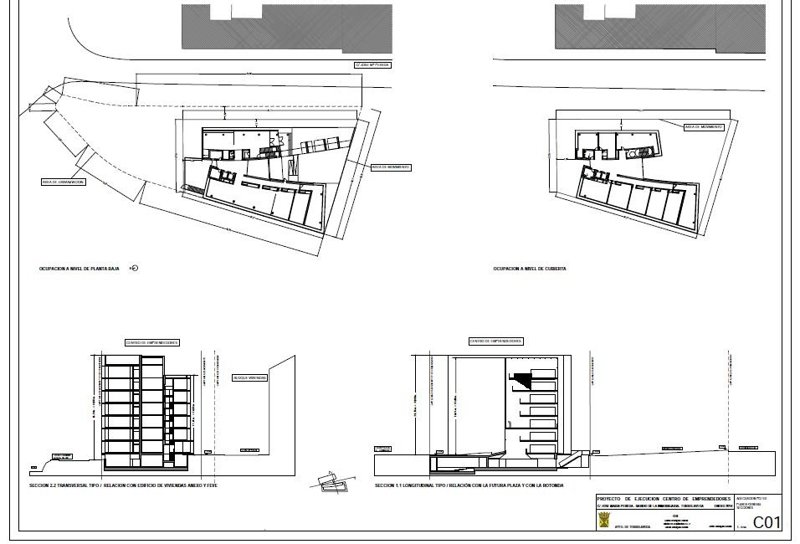
Planos del proyecto del Centro de Emprendedores de Torrelavega
Foto: ACPT
Europa Press Cantabria
Actualizado: viernes, 2 mayo 2014 18:59

TORRELAVEGA, 2 May. (EUROPA PRESS) -

   El Ayuntamiento de Torrelavega ha sacado a licitación, por procedimiento abierto, la ejecución de la obra de Centro de Emprendedores del Barrio La Inmobiliaria, incluida en la Iniciativa Urban, y con un presupuesto de licitación de 4,5 millones, que será confianciado con cargo a los fondos Feder de la Unión Europea.

   El plazo de ejecución de la obra es de 16 meses y las ofertas se podrán presentar en el plazo de 26 días a partir del lunes 5 de mayo, según figura en el anuncio publicado este viernes en el Boletín Oficial de Cantabria.

   El presupuesto base tiene un importe neto de 3.774.720 euros, y asciende a 4.567.412 si se suma el IVA.

   El proyecto del centro fue aprobado por el Pleno de la Corporación de Torrelavega del pasado mes de abril con el voto favorable de todos los grupos salvo ACPT, que votó en contra.

   El arquitecto Javier Rodríguez Alcoba, autor del proyecto, se lo presentó a los integrantes del Consejo Sectorial del Urban, en el que están representados todos los agentes implicados en el desarrollo del plan. En la reunión se informó favorablemente la documentación administrativa, pliego de condiciones, etc. del proyecto, que constituye "una de las actuaciones más importantes del Plan Urban", según el equipo de Gobierno.

   Aunque al Ejecutivo local no le gusta la ubicación del futuro Centro de Emprendedores en la Finca de la Carmencita, una vez elegido por la Corporación, trabajará "para que quede lo mejor posible y significativamente mejor de cómo se había planteado en un principio".

   "De lo que nos estamos ocupando es de que el edificio disponga de todos los medios necesarios para que se optimice el trabajo que dentro del mismo se realiza y realmente suponga un beneficio para la ciudad y los ciudadanos", se ha explicado desde el equipo de Gobierno, que exigirá a la Administración cántabra "que cumpla sus compromisos adquiridos con Torrelavega en esta materia e invierta todos los recursos necesarios para dotarle de los elementos necesarios para que sea un centro de emprendimiento regional".

Contenido patrocinado