El Govern disposa del projecte bàsic per a la creació del centre cultural artístic Junyer Canals a Deià

Projecte bsic del centre cultural Junyer Casals
Projecte bsic del centre cultural Junyer Casals - CAIB
Europa Press Islas Baleares
Publicado: lunes, 1 julio 2019 16:45

   PALMA DE MALLORCA, 1 Jul. (EUROPA PRESS) -

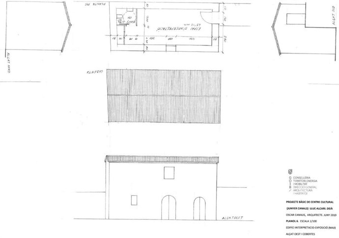
   La Conselleria de Cultura, Participació i Esports i la de Territori, Energia i Mobilitat en funcions ja disposen del projecte bsic del qual ha de ser el centre cultural artístic dedicat al matrimoni Junyer Canals, a Llucalcari, Dei, quan es compleixen 25 anys de la donació, en 1994, de dues cases.

   Segons han explicat en un comunicat, el matrimoni del pintor Joan Junyer i Dolors Canals van donar a la Comunitat les dues cases de Ca Mad Bet i Ca Dos amb la condició que es creés un centre cultural per part del Govern. En aquestes propietats, l'artista va rebre el llegat pictric de la passió mallorquina del seu oncle Sebasti Junyer.

   En aquest sentit, amb el projecte bsic, es dóna llum verda al projecte de reforma de les cases i l'adequació dels terrenys, la neteja dels quals ja es va fer fa mesos, per a la creació d'uns espais que es destinaran a una residncia per a artistes i a un centre d'exposicions.

   Més concretament, el text est redactat per Oscar Canalis i és el resultat d'haver aixecat la planimetria de les propietats i haver convocat el concurs arquitectnic d'idees per a la rehabilitació de les cases.

Contenido patrocinado